- 東京の賃貸オフィス・貸事務所TOP
- 文京区
- 本郷・湯島エリア
- ITP本郷オフィス(アイティーピーホンゴウオフィス)
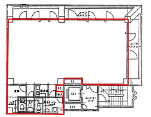
ITP本郷オフィス 7階 33.96坪 賃貸オフィス詳細
- 物件ID
- 103024
- ITP本郷オフィス(アイティーピーホンゴウオフィス) 7階 33.96坪
-
”ITP本郷オフィス(アイティーピーホンゴウオフィス)”は、 湯島駅から徒歩4分、上野広小路駅から徒歩7分、末広町駅から徒歩7分、御徒町駅から徒歩9分、本郷三丁目駅から徒歩9分、京成上野駅から徒歩10分、御茶ノ水駅から徒歩10分 の賃貸オフィスです。
1989年8月に竣工。構造は鉄骨鉄筋コンクリート(SRC造)。耐震構造は新耐震。
利用可能路線は銀座線、山手線、中央線(快速)、京成本線、丸ノ内線、千代田線、半蔵門線、南北線、都営新宿線で、 用途は賃貸オフィスとなっています。最寄り駅は湯島駅と上野広小路駅と末広町駅と御徒町駅と本郷三丁目駅と京成上野駅と御茶ノ水駅。 住所は文京区湯島2-25-7です。
ぜひ一度、内覧にお越しくださいませ。
フロア概要
| 階数 | 7階 | 面積 | 33.96坪(112.26m²) |
|---|---|---|---|
| 賃料/坪 | 14,000円/坪 | 共益費/坪 | 賃料に含む |
| 月額賃料 (共益費込) |
475,440円 | 入居日 | 即 |
| 敷金 (保証金) |
8ヶ月 | 礼金 | 無し |
| 償却費 | 1ヶ月 | 更新料 | 1ヶ月 |
| 契約 | 普通借家(2年) | ||
ビル概要
| 物件名 | ITP本郷オフィス(アイティーピーホンゴウオフィス) | ||
|---|---|---|---|
| 所在地 | 文京区湯島2-25-7 | ||
| 利用可能駅 | |||
| 利用可能 路線 |
|||
| 竣工 | 1989年8月 | リニューアル | - |
| 構造 | 鉄骨鉄筋コンクリート(SRC造) | 規模 | B1階/8階 |
| 耐震構造 | 新耐震 | ||
空調有り
新耐震
光ファイバー利用可
24時間利用可
要確認
駐車場有り
アクセス
このビルの募集中フロア一覧
| 所在階 | 面積 | 入居予定 | 賃料 | 共益費 | 賃料総額 |
|---|---|---|---|---|---|
| 5階 | 53.51坪 | 即 | 14,000円/坪 | 賃料に含む | 749,140円/月 |
| 6階 | 44.08坪 | - | - | - | - |
| 7階 | 33.96坪 | 即 | 14,000円/坪 | 賃料に含む | 475,440円/月 |

