- 東京の賃貸オフィス・貸事務所TOP
- 渋谷区
- 渋谷・原宿・神宮前・東エリア
- JP-BASE渋谷(ジェーピーベースシブヤ)
JP-BASE渋谷 4階 28.37坪 賃貸オフィス詳細
- 物件ID
- 97412
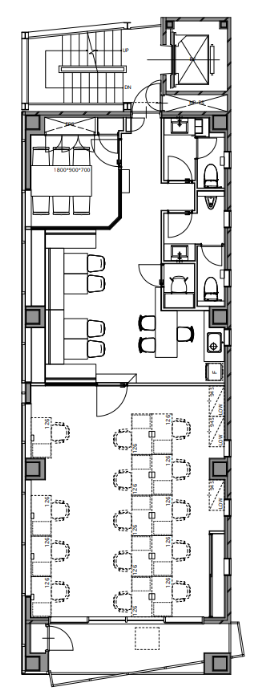
- JP-BASE渋谷(ジェーピーベースシブヤ) 4階 28.37坪
-
”JP-BASE渋谷(ジェーピーベースシブヤ)”は、 恵比寿駅から徒歩8分、代官山駅から徒歩9分 の賃貸オフィスです。
1985年12月に竣工。構造は鉄骨造(S造)。耐震構造は新耐震。
利用可能路線は山手線、東急東横線で、 用途は賃貸オフィスとなっています。最寄り駅は恵比寿駅と代官山駅。 住所は渋谷区東2-17-9です。
ぜひ一度、内覧にお越しくださいませ。
フロア概要
| 階数 | 4階 | 面積 | 28.37坪(93.79m²) |
|---|---|---|---|
| 賃料/坪 | 35,530円/坪 | 共益費/坪 | 賃料に含む |
| 月額賃料 (共益費込) |
1,008,000円 | 入居日 | 2026年3月26日 |
| 敷金 (保証金) |
3ヶ月 | 礼金 | 無し |
| 償却費 | 無し | 更新料 | 無し |
| 契約 | 定期借家(2年) | ||
ビル概要
| 物件名 | JP-BASE渋谷(ジェーピーベースシブヤ) | ||
|---|---|---|---|
| 所在地 | 渋谷区東2-17-9 | ||
| 利用可能駅 | |||
| 利用可能 路線 |
|||
| 竣工 | 1985年12月 | リニューアル | 2024年3月 |
| 構造 | 鉄骨造(S造) | 規模 | 1階/8階 |
| 耐震構造 | 新耐震 | ||
個別空調
新耐震
光ファイバー利用可
24時間利用可
OAフロア無し
駐車場無し
アクセス
このビルの募集中フロア一覧
| 所在階 | 面積 | 入居予定 | 賃料 | 共益費 | 賃料総額 |
|---|---|---|---|---|---|
| 1階 | 31.4坪 | - | - | - | - |
| 3階 | 28.37坪 | 2026年5月1日 | 35,530円/坪 | 賃料に含む | 1,008,000円/月 |
| 4階 | 28.37坪 | 2026年3月26日 | 35,530円/坪 | 賃料に含む | 1,008,000円/月 |
| 5階 | 27.78坪 | 2026年1月15日 | 36,454円/坪 | 賃料に含む | 1,012,680円/月 |
| 6階 | 23.46坪 | - | - | - | - |
| 7階 | 40.94坪 | - | - | - | - |
| 8階 | 28.6坪 | - | - | - | - |
もっと検索する
- 駅から検索
- エリアから検索

