- 東京の賃貸オフィス・貸事務所TOP
- 渋谷区
- 道玄坂・宇田川町・桜丘・南平台・神泉・神南エリア
- アライアンスビル渋谷壱番館(アライアンスビルシブヤイチバンカン)
アライアンスビル渋谷壱番館 5階 26.63坪 賃貸オフィス詳細
- 物件ID
- 64087
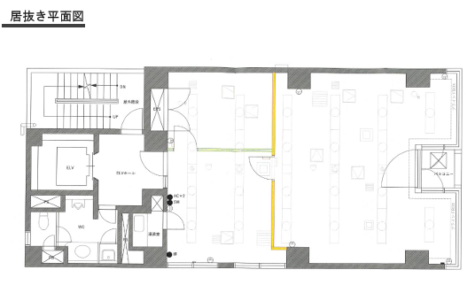
- アライアンスビル渋谷壱番館(アライアンスビルシブヤイチバンカン) 5階 26.63坪
-
”アライアンスビル渋谷壱番館(アライアンスビルシブヤイチバンカン)”は、 神泉駅から徒歩4分、渋谷駅から徒歩6分 の賃貸オフィスです。
1989年8月に竣工。構造は鉄骨鉄筋コンクリート(SRC造)。耐震構造は新耐震。
利用可能路線は山手線、京王井の頭線で、 用途は賃貸オフィスとなっています。最寄り駅は神泉駅と渋谷駅。 住所は渋谷区道玄坂1-20-2です。
ぜひ一度、内覧にお越しくださいませ。
フロア概要
| 階数 | 5階 | 面積 | 26.63坪(88.03m²) |
|---|---|---|---|
| 賃料/坪 | 26,000円/坪 | 共益費/坪 | 賃料に含む |
| 月額賃料 (共益費込) |
692,380円 | 入居日 | 2026年2月上旬 |
| 敷金 (保証金) |
2ヶ月 | 礼金 | 無し |
| 償却費 | 無し | 更新料 | 1ヶ月 |
| 契約 | 定期借家(2年) | ||
ビル概要
| 物件名 | アライアンスビル渋谷壱番館(アライアンスビルシブヤイチバンカン) | ||
|---|---|---|---|
| 所在地 | 渋谷区道玄坂1-20-2 | ||
| 利用可能駅 | |||
| 利用可能 路線 |
|||
| 竣工 | 1989年8月 | リニューアル | - |
| 構造 | 鉄骨鉄筋コンクリート(SRC造) | 規模 | B1階/9階 |
| 耐震構造 | 新耐震 | ||
個別空調
新耐震
光ファイバー利用可
24時間利用可
OAフロア有り
要確認
アクセス
このビルの募集中フロア一覧
| 所在階 | 面積 | 入居予定 | 賃料 | 共益費 | 賃料総額 |
|---|---|---|---|---|---|
| 2階 | 15.3坪 | - | - | - | - |
| 3階 | 26.63坪 | - | - | - | - |
| 4階 | 26.63坪 | - | - | - | - |
| 5階 | 26.63坪 | 2026年2月上旬 | 26,000円/坪 | 賃料に含む | 692,380円/月 |
| 6階 | 26.63坪 | - | - | - | - |
| 7階 | 26.63坪 | - | - | - | - |
| 8階 | 20.32坪 | - | - | - | - |

