- 東京の賃貸オフィス・貸事務所TOP
- 中央区
- 茅場町・八丁堀・新川・兜町周辺エリア
- 稲村・北辰ビル(イナムラ・ホクシンビル)
稲村・北辰ビル 8階 48坪 賃貸オフィス詳細
- 物件ID
- 60082
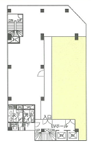
- 稲村・北辰ビル(イナムラ・ホクシンビル) 8階 48坪
-
”稲村・北辰ビル(イナムラ・ホクシンビル)”は、 茅場町駅から徒歩1分、水天宮前駅から徒歩8分、日本橋駅から徒歩8分、八丁堀駅から徒歩8分、人形町駅から徒歩10分 の賃貸オフィスです。
1963年1月に竣工。構造は鉄骨鉄筋コンクリート(SRC造)。耐震構造は旧耐震。
利用可能路線は半蔵門線、日比谷線、銀座線、京葉線で、 用途は賃貸オフィスとなっています。最寄り駅は茅場町駅と水天宮前駅と日本橋駅と八丁堀駅と人形町駅。 住所は中央区日本橋茅場町1-9-2です。
ぜひ一度、内覧にお越しくださいませ。
フロア概要
| 階数 | 8階 | 面積 | 48坪(158.68m²) |
|---|---|---|---|
| 賃料/坪 | 相談 | 共益費/坪 | 4,000円/坪 |
| 月額賃料 (共益費込) |
相談 | 入居日 | 即 |
| 敷金 (保証金) |
相談 | 礼金 | 無し |
| 償却費 | 無し | 更新料 | 無し |
| 契約 | 定期借家(5年) | ||
ビル概要
| 物件名 | 稲村・北辰ビル(イナムラ・ホクシンビル) | ||
|---|---|---|---|
| 所在地 | 中央区日本橋茅場町1-9-2 | ||
| 利用可能駅 | |||
| 利用可能 路線 |
|||
| 竣工 | 1963年1月 | リニューアル | - |
| 構造 | 鉄骨鉄筋コンクリート(SRC造) | 規模 | B1階/9階 |
| 耐震構造 | 旧耐震 | ||
個別空調
旧耐震
光ファイバー利用可
24時間利用可
要確認
駐車場無し
アクセス
このビルの募集中フロア一覧
| 所在階 | 面積 | 入居予定 | 賃料 | 共益費 | 賃料総額 |
|---|---|---|---|---|---|
| 3階 | 125坪 | - | - | - | - |
| 4階 | 125坪 | - | - | - | - |
| 5階 | 125坪 | - | - | - | - |
| 6階 | 125坪 | 即 | 16,000円/坪 | 無し | 2,000,000円/月 |
| 7階 | 125坪 | - | - | - | - |
| 8階 | 48坪 | 即 | 相談 | 4,000円/坪 | - |
| 8階 | 77坪 | - | - | - | - |
| 8階 | 27.66坪 | - | - | - | - |
| 9階 | 78坪 | - | - | - | - |

