- 東京の賃貸オフィス・貸事務所TOP
- 港区
- 浜松町・田町・三田・高輪・白金エリア
- 白金台ビル(シロカネダイビル)
白金台ビル 3階 85.77坪 賃貸オフィス詳細
- 物件ID
- 58824
- 白金台ビル(シロカネダイビル) 3階 85.77坪
-
”白金台ビル(シロカネダイビル)”は、 目黒駅から徒歩6分、白金台駅から徒歩8分 の賃貸オフィスです。
1988年1月に竣工。構造は鉄骨鉄筋コンクリート(SRC造)。耐震構造は新耐震。
利用可能路線は山手線、南北線で、 用途は賃貸オフィスとなっています。最寄り駅は目黒駅と白金台駅。 住所は港区白金台3-19-6です。
ぜひ一度、内覧にお越しくださいませ。
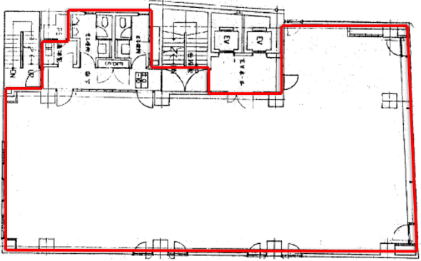
フロア概要
| 階数 | 3階 | 面積 | 85.77坪(283.54m²) |
|---|---|---|---|
| 賃料/坪 | 相談 | 共益費/坪 | 賃料に含む |
| 月額賃料 (共益費込) |
相談 | 入居日 | 2026年1月5日 |
| 敷金 (保証金) |
10ヶ月 | 礼金 | 1ヶ月 |
| 償却費 | 無し | 更新料 | 無し |
| 契約 | 定期借家 | ||
ビル概要
| 物件名 | 白金台ビル(シロカネダイビル) | ||
|---|---|---|---|
| 所在地 | 港区白金台3-19-6 | ||
| 利用可能駅 | |||
| 利用可能 路線 |
|||
| 竣工 | 1988年1月 | リニューアル | - |
| 構造 | 鉄骨鉄筋コンクリート(SRC造) | 規模 | 1階/7階 |
| 耐震構造 | 新耐震 | ||
個別空調
新耐震
光ファイバー利用可
24時間利用可
OAフロア有り
要確認
アクセス
このビルの募集中フロア一覧
| 所在階 | 面積 | 入居予定 | 賃料 | 共益費 | 賃料総額 |
|---|---|---|---|---|---|
| 2階 | 85.77坪 | - | - | - | - |
| 3階 | 85.77坪 | 2026年1月5日 | 相談 | 賃料に含む | - |
| 4階 | 85.77坪 | - | - | - | - |

