- 東京の賃貸オフィス・貸事務所TOP
- 港区
- 浜松町・田町・三田・高輪・白金エリア
- 芝シムラビル(シバシムラビル)
芝シムラビル 1階 30.09坪 賃貸オフィス詳細
- 物件ID
- 55495
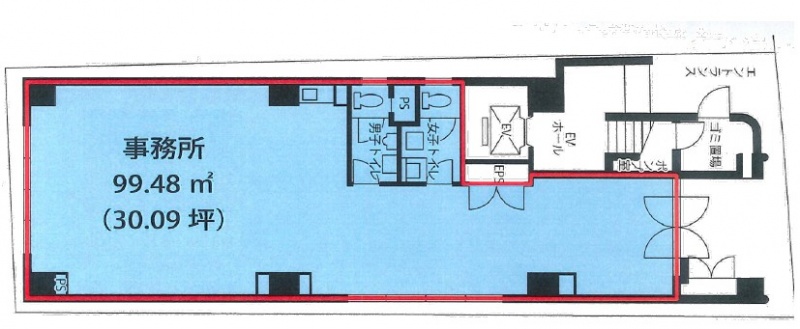
- 芝シムラビル(シバシムラビル) 1階 30.09坪
-
”芝シムラビル(シバシムラビル)”は、 芝公園駅から徒歩6分、日の出駅から徒歩7分、浜松町駅から徒歩7分、三田駅から徒歩8分、大門駅から徒歩8分 の賃貸オフィスです。
1988年3月に竣工。構造は鉄骨鉄筋コンクリート(SRC造)。耐震構造は新耐震。
利用可能路線はゆりかもめ、都営三田線、都営浅草線、都営大江戸線、山手線で、 用途は賃貸オフィスとなっています。最寄り駅は芝公園駅と日の出駅と浜松町駅と三田駅と大門駅。 住所は港区芝2-3-12です。
ぜひ一度、内覧にお越しくださいませ。
フロア概要
| 階数 | 1階 | 面積 | 30.09坪(99.47m²) |
|---|---|---|---|
| 賃料/坪 | - | 共益費/坪 | - |
| 月額賃料 (共益費込) |
- | 入居日 | - |
| 敷金 (保証金) |
- | 礼金 | - |
| 償却費 | - | 更新料 | - |
| 契約 | - | ||
ビル概要
| 物件名 | 芝シムラビル(シバシムラビル) | ||
|---|---|---|---|
| 所在地 | 港区芝2-3-12 | ||
| 利用可能駅 | |||
| 利用可能 路線 |
|||
| 竣工 | 1988年3月 | リニューアル | - |
| 構造 | 鉄骨鉄筋コンクリート(SRC造) | 規模 | B1階/9階 |
| 耐震構造 | 新耐震 | ||
個別空調
新耐震
光ファイバー利用可
24時間利用可
OAフロア有り
駐車場有り
アクセス
このビルの募集中フロア一覧
| 所在階 | 面積 | 入居予定 | 賃料 | 共益費 | 賃料総額 |
|---|---|---|---|---|---|
| 1階 | 30.09坪 | - | - | - | - |
| 2階 | 32.02坪 | - | - | - | - |
| 3階 | 32.02坪 | - | - | - | - |
| 4階 | 32.02坪 | - | - | - | - |
| 8階 | 32.02坪 | - | - | - | - |
| 9階 | 32.02坪 | - | - | - | - |

