- 東京の賃貸オフィス・貸事務所TOP
- 中央区
- 人形町・水天宮・小伝馬町周辺エリア
- 人形町ファーストビル(ニンギョウチョウファーストビル)
人形町ファーストビル B2階 126.92坪 賃貸オフィス詳細
一棟貸し可能- 物件ID
- 34160
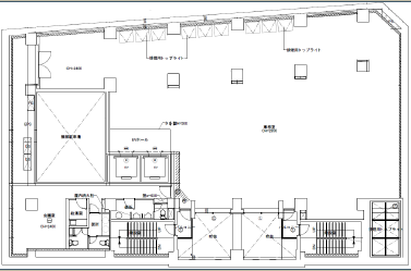
- 人形町ファーストビル(ニンギョウチョウファーストビル) B2階 126.92坪
-
”人形町ファーストビル(ニンギョウチョウファーストビル)”は、 人形町駅から徒歩3分、水天宮前駅から徒歩7分、小伝馬町駅から徒歩8分、新日本橋駅から徒歩9分、茅場町駅から徒歩9分、日本橋駅から徒歩10分 の賃貸オフィスです。
1993年8月に竣工。構造は鉄筋コンクリート(RC造)。耐震構造は新耐震。
利用可能路線は銀座線、日比谷線、半蔵門線で、 用途は賃貸オフィスとなっています。最寄り駅は人形町駅と水天宮前駅と小伝馬町駅と新日本橋駅と茅場町駅と日本橋駅。 住所は中央区日本橋人形町3-3-6です。
ぜひ一度、内覧にお越しくださいませ。
フロア概要
| 階数 | B2階 | 面積 | 126.92坪(419.57m²) |
|---|---|---|---|
| 賃料/坪 | 相談 | 共益費/坪 | 相談 |
| 月額賃料 (共益費込) |
相談 | 入居日 | 相談 |
| 敷金 (保証金) |
相談 | 礼金 | 無し |
| 償却費 | 無し | 更新料 | 無し |
| 契約 | 普通借家(2年) | ||
ビル概要
| 物件名 | 人形町ファーストビル(ニンギョウチョウファーストビル) | ||
|---|---|---|---|
| 所在地 | 中央区日本橋人形町3-3-6 | ||
| 利用可能駅 | |||
| 利用可能 路線 |
|||
| 竣工 | 1993年8月 | リニューアル | - |
| 構造 | 鉄筋コンクリート(RC造) | 規模 | B3階/7階 |
| 耐震構造 | 新耐震 | ||
個別空調
新耐震
光ファイバー利用可
24時間利用可
OAフロア有り
駐車場有り
アクセス
このビルの募集中フロア一覧
| 所在階 | 面積 | 入居予定 | 賃料 | 共益費 | 賃料総額 |
|---|---|---|---|---|---|
| B2階 | 126.92坪 | 相談 | 相談 | 相談 | - |
| B1階 | 117.18坪 | - | - | - | - |
| 2階 | 136.23坪 | - | - | - | - |
| 3階 | 146.96坪 | - | - | - | - |
| 4階 | 141.24坪 | - | - | - | - |
| 5階 | 107.84坪 | - | - | - | - |
| 6階 | 119.03坪 | 即 | 相談 | 相談 | - |

