- 東京の賃貸オフィス・貸事務所TOP
- 千代田区
- 九段下・神保町・竹橋エリア
- NOVEL WORK Jimbocho(ノーベルワークジンボウチョウ)
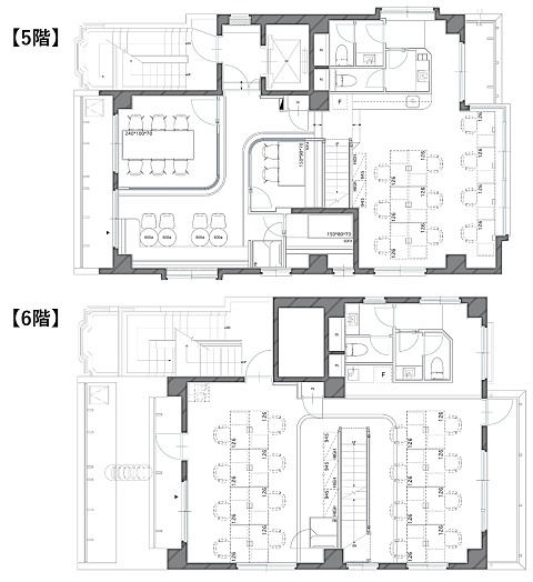
NOVEL WORK Jimbocho 5階 ~6階一括貸 50.25坪 賃貸オフィス詳細
- 物件ID
- 167698
- NOVEL WORK Jimbocho(ノーベルワークジンボウチョウ) 5階 50.25坪
-
”NOVEL WORK Jimbocho(ノーベルワークジンボウチョウ)”は、 神保町駅から徒歩3分、九段下駅から徒歩5分、水道橋駅から徒歩7分、竹橋駅から徒歩10分 の賃貸オフィスです。
1986年3月に竣工。構造は鉄骨鉄筋コンクリート(SRC造)。耐震構造は新耐震。
利用可能路線は半蔵門線、東西線、中央線(快速)で、 用途は賃貸オフィスとなっています。最寄り駅は神保町駅と九段下駅と水道橋駅と竹橋駅。 住所は千代田区神田神保町2-8-20です。
ぜひ一度、内覧にお越しくださいませ。
フロア概要
| 階数 | 5階 ~6階一括貸 | 面積 | 50.25坪(166.12m²) |
|---|---|---|---|
| 賃料/坪 | 25,000円/坪 | 共益費/坪 | 賃料に含む |
| 月額賃料 (共益費込) |
1,256,250円 | 入居日 | 即 |
| 敷金 (保証金) |
無し | 礼金 | 無し |
| 償却費 | 無し | 更新料 | 無し |
| 契約 | 普通借家 | ||
ビル概要
| 物件名 | NOVEL WORK Jimbocho(ノーベルワークジンボウチョウ) | ||
|---|---|---|---|
| 所在地 | 千代田区神田神保町2-8-20 | ||
| 利用可能駅 | |||
| 利用可能 路線 |
|||
| 竣工 | 1986年3月 | リニューアル | - |
| 構造 | 鉄骨鉄筋コンクリート(SRC造) | 規模 | 1階/7階 |
| 耐震構造 | 新耐震 | ||
個別空調
新耐震
光ファイバー利用可
24時間利用可
OAフロア無し
駐車場無し
アクセス
このビルの募集中フロア一覧
| 所在階 | 面積 | 入居予定 | 賃料 | 共益費 | 賃料総額 |
|---|---|---|---|---|---|
| 2階 | 30.39坪 | - | - | - | - |
| 3階 | 30.39坪 | - | - | - | - |
| 4階 | 30.39坪 | - | - | - | - |
| 5階 | 10.85坪 | - | - | - | - |
| 5階 | 11.12坪 | - | - | - | - |
| 5階 | 50.25坪 | 即 | 25,000円/坪 | 賃料に含む | 1,256,250円/月 |

