- 東京の賃貸オフィス・貸事務所TOP
- 新宿区
- 四ツ谷・四ツ谷三丁目・信濃町エリア
- 大洋ビル(タイヨウビル)
大洋ビル 3階 C 13坪 賃貸オフィス詳細
- 物件ID
- 167625
- 大洋ビル(タイヨウビル) 3階 13坪
-
”大洋ビル(タイヨウビル)”は、 四ツ谷駅から徒歩5分、四谷三丁目駅から徒歩8分、曙橋駅から徒歩10分 の賃貸オフィスです。
1963年2月に竣工。構造は鉄筋コンクリート(RC造)。耐震構造は旧耐震。
利用可能路線は銀座線、中央線(快速)、都営大江戸線、丸ノ内線、都営新宿線で、 用途は賃貸オフィスとなっています。最寄り駅は四ツ谷駅と四谷三丁目駅と曙橋駅。 住所は新宿区若葉1-10-27です。
ぜひ一度、内覧にお越しくださいませ。
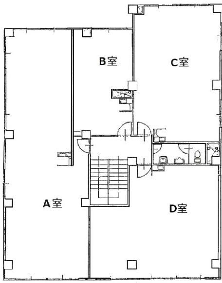
フロア概要
| 階数 | 3階 C | 面積 | 13坪(42.98m²) |
|---|---|---|---|
| 賃料/坪 | 11,692円/坪 | 共益費/坪 | 1,154円/坪 |
| 月額賃料 (共益費込) |
167,000円 | 入居日 | 相談 |
| 敷金 (保証金) |
4ヶ月 | 礼金 | 1ヶ月 |
| 償却費 | 無し | 更新料 | 1ヶ月 |
| 契約 | 普通借家(2年) | ||
ビル概要
| 物件名 | 大洋ビル(タイヨウビル) | ||
|---|---|---|---|
| 所在地 | 新宿区若葉1-10-27 | ||
| 利用可能駅 | |||
| 利用可能 路線 |
|||
| 竣工 | 1963年2月 | リニューアル | - |
| 構造 | 鉄筋コンクリート(RC造) | 規模 | B1階/5階 |
| 耐震構造 | 旧耐震 | ||
個別空調
旧耐震
光ファイバー利用可
24時間利用可
OAフロア無し
要確認
アクセス
このビルの募集中フロア一覧
| 所在階 | 面積 | 入居予定 | 賃料 | 共益費 | 賃料総額 |
|---|---|---|---|---|---|
| 1階 | 16.5坪 | - | - | - | - |
| 2階 | 13.5坪 | - | - | - | - |
| 2階 | 12.5坪 | - | - | - | - |
| 3階 | 14.5坪 | - | - | - | - |
| 3階 | 20.6坪 | - | - | - | - |
| 3階 | 13坪 | 相談 | 11,692円/坪 | 1,154円/坪 | 152,000円/月 |
| 4階 | 13.5坪 | - | - | - | - |
| 5階 | 11.5坪 | - | - | - | - |

