- 東京の賃貸オフィス・貸事務所TOP
- 文京区
- 春日・後楽園・茗荷谷・音羽・小石川エリア
- 藤和護国寺コープ・冨士ビル(トウワゴコクジコープフジ)
藤和護国寺コープ・冨士ビル 1階 C室 36.86坪 賃貸オフィス詳細
- 物件ID
- 126027
- 藤和護国寺コープ・冨士ビル(トウワゴコクジコープフジ) 1階 36.86坪
-
”藤和護国寺コープ・冨士ビル(トウワゴコクジコープフジ)”は、 東池袋駅から徒歩6分、都電雑司ヶ谷駅から徒歩7分、向原駅から徒歩8分、護国寺駅から徒歩8分、新大塚駅から徒歩9分 の賃貸オフィスです。
1979年3月に竣工。構造は鉄骨鉄筋コンクリート(SRC造)。耐震構造は旧耐震。
利用可能路線は都営都電荒川線、有楽町線、丸ノ内線で、 用途は賃貸オフィスとなっています。最寄り駅は東池袋駅と都電雑司ヶ谷駅と向原駅と護国寺駅と新大塚駅。 住所は文京区大塚6-37-5です。
ぜひ一度、内覧にお越しくださいませ。
フロア概要
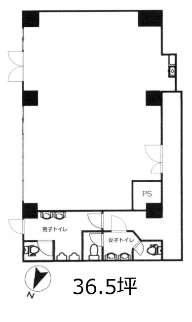
| 階数 | 1階 C室 | 面積 | 36.86坪(121.85m²) |
|---|---|---|---|
| 賃料/坪 | 12,208円/坪 | 共益費/坪 | 1,085円/坪 |
| 月額賃料 (共益費込) |
490,000円 | 入居日 | 即 |
| 敷金 (保証金) |
3ヶ月 | 礼金 | 無し |
| 償却費 | 20% | 更新料 | 無し |
| 契約 | 定期借家(2年) | ||
ビル概要
| 物件名 | 藤和護国寺コープ・冨士ビル(トウワゴコクジコープフジ) | ||
|---|---|---|---|
| 所在地 | 文京区大塚6-37-5 | ||
| 利用可能駅 | |||
| 利用可能 路線 |
|||
| 竣工 | 1979年3月 | リニューアル | - |
| 構造 | 鉄骨鉄筋コンクリート(SRC造) | 規模 | 1階/8階 |
| 耐震構造 | 旧耐震 | ||
個別空調
旧耐震
光ファイバー利用可
24時間利用可
OAフロア無し
駐車場有り
アクセス
このビルの募集中フロア一覧
| 所在階 | 面積 | 入居予定 | 賃料 | 共益費 | 賃料総額 |
|---|---|---|---|---|---|
| 1階 | 34.09坪 | - | - | - | - |
| 1階 | 36.6坪 | - | - | - | - |
| 1階 | 22.77坪 | - | - | - | - |
| 1階 | 27.12坪 | - | - | - | - |
| 1階 | 14.24坪 | - | - | - | - |
| 1階 | 36.56坪 | - | - | - | - |
| 1階 | 36.86坪 | 即 | 12,208円/坪 | 1,085円/坪 | 450,000円/月 |

