白金台ビル 3階 85.77坪 賃貸オフィス詳細

物件No.
58824
お電話でのお問い合わせの際にはこの物件Noをお知らせください。

フロア概要

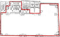
階数 3F 面積 85.77坪(283.54m²)
賃料/坪 相談 共益費/坪 賃料に含む
賃料総額 - 入居日 2026年1月5日
敷金
(保証金)
10ヶ月 礼金 1ヶ月
償却費 無し 更新料 無し
契約 定期借家

ビル概要

所在地 港区白金台3-19-6
  • 港区浜松町・田町・三田・高輪・白金エリア
利用可能駅
  • ・目黒駅(徒歩約6分)
  • ・白金台駅(徒歩約8分)
利用可能
路線
  • ・山手線
  • ・南北線
竣工 1988年1月 リニューアル -
構造 鉄骨鉄筋コンクリート(SRC造) 規模 1階/7階
  • 個別空調個別空調
  • 新耐震新耐震
  • 光ファイバー利用可光ファイバー利用可
  • 24時間利用可24時間利用可
  • OAフロア有りOAフロア有り
  • 要確認要確認

アクセス