コイトビル 5階 503号室 15.8坪 賃貸オフィス詳細

物件No.
115850
お電話でのお問い合わせの際にはこの物件Noをお知らせください。

フロア概要

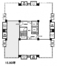
階数 5F 面積 15.8坪(52.23m²)
賃料/坪 13,000円/坪 共益費/坪 3,000円/坪
賃料総額 205,400円/月 入居日
敷金
(保証金)
8ヶ月 礼金 1ヶ月
償却費 無し 更新料 相談
契約 定期借家(2年)

ビル概要

所在地 新宿区西新宿6-12-4
  • 新宿区西新宿エリア
利用可能駅
  • ・西新宿駅(徒歩約4分)
  • ・都庁前駅(徒歩約6分)
  • ・西新宿五丁目駅(徒歩約9分)
  • ・中野坂上駅(徒歩約10分)
利用可能
路線
  • ・丸ノ内線
  • ・都営大江戸線
竣工 1974年4月 リニューアル -
構造 鉄骨鉄筋コンクリート(SRC造) 規模 B2階/12階
  • 個別空調個別空調
  • 旧耐震旧耐震
  • 光ファイバー利用可光ファイバー利用可
  • 24時間利用可24時間利用可
  • OAフロア有りOAフロア有り
  • 駐車場無し駐車場無し

アクセス