- 東京の賃貸オフィス・貸事務所TOP
- 新宿区
- 西新宿エリア
- 西新宿大京ビル(ニシシンジュクダイキョウビル)
西新宿大京ビル 4階 250.63坪 賃貸オフィス詳細
- 物件ID
- 98135
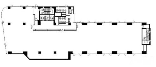
- 西新宿大京ビル(ニシシンジュクダイキョウビル) 4階 250.63坪
-
”西新宿大京ビル(ニシシンジュクダイキョウビル)”は、 西新宿駅から徒歩3分、都庁前駅から徒歩6分、新宿西口駅から徒歩6分、西武新宿駅から徒歩7分、新宿駅から徒歩9分、大久保駅から徒歩10分 の賃貸オフィスです。
1994年2月に竣工。構造は鉄骨鉄筋コンクリート(SRC造)。耐震構造は新耐震。
利用可能路線は山手線、中央線(快速)、西武新宿線、丸ノ内線、都営大江戸線で、 用途は賃貸オフィスとなっています。最寄り駅は西新宿駅と都庁前駅と新宿西口駅と西武新宿駅と新宿駅と大久保駅。 住所は新宿区西新宿7-21-3です。
ぜひ一度、内覧にお越しくださいませ。
フロア概要
| 階数 | 4階 | 面積 | 250.63坪(828.53m²) |
|---|---|---|---|
| 賃料/坪 | 相談 | 共益費/坪 | 賃料に含む |
| 月額賃料 (共益費込) |
相談 | 入居日 | 2026年4月上旬 |
| 敷金 (保証金) |
相談 | 礼金 | 無し |
| 償却費 | 無し | 更新料 | 無し |
| 契約 | 定期借家(2年) | ||
ビル概要
| 物件名 | 西新宿大京ビル(ニシシンジュクダイキョウビル) | ||
|---|---|---|---|
| 所在地 | 新宿区西新宿7-21-3 | ||
| 利用可能駅 | |||
| 利用可能 路線 |
|||
| 竣工 | 1994年2月 | リニューアル | 2022年11月 |
| 構造 | 鉄骨鉄筋コンクリート(SRC造) | 規模 | B2階/10階 |
| 耐震構造 | 新耐震 | ||
個別空調
新耐震
光ファイバー利用可
24時間利用可
OAフロア有り
駐車場有り
アクセス
このビルの募集中フロア一覧
| 所在階 | 面積 | 入居予定 | 賃料 | 共益費 | 賃料総額 |
|---|---|---|---|---|---|
| 1階 | 90.95坪 | - | - | - | - |
| 2階 | 236.68坪 | - | - | - | - |
| 3階 | 107.12坪 | - | - | - | - |
| 3階 | 63.88坪 | - | - | - | - |
| 3階 | 43.8坪 | - | - | - | - |
| 4階 | 250.86坪 | - | - | - | - |
| 4階 | 250.63坪 | 2026年4月上旬 | 相談 | 賃料に含む | - |
| 5階 | 250.63坪 | - | - | - | - |
| 6階 | 61.71坪 | - | - | - | - |
| 7階 | 237.91坪 | - | - | - | - |
| 8階 | 237.91坪 | - | - | - | - |

