- 東京の賃貸オフィス・貸事務所TOP
- 中央区
- 日本橋・八重洲・京橋周辺エリア
- ACN日本橋PLACE(エーシーエヌニホンバシプレイス)
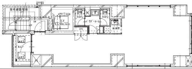
ACN日本橋PLACE 9階 19.91坪 賃貸オフィス詳細
- 物件ID
- 98120
- ACN日本橋PLACE(エーシーエヌニホンバシプレイス) 9階 19.91坪
-
”ACN日本橋PLACE(エーシーエヌニホンバシプレイス)”は、 日本橋駅から徒歩4分、茅場町駅から徒歩5分、八丁堀駅から徒歩8分、京橋駅から徒歩8分 の賃貸オフィスです。
2019年4月に竣工。構造は鉄筋コンクリート(RC造)。耐震構造は新耐震。
利用可能路線は半蔵門線、有楽町線、日比谷線、丸ノ内線、銀座線、京葉線、総武本線、山手線、東海道本線で、 用途は賃貸オフィスとなっています。最寄り駅は日本橋駅と茅場町駅と八丁堀駅と京橋駅。 住所は中央区日本橋2-16-6です。
ぜひ一度、内覧にお越しくださいませ。
フロア概要
| 階数 | 9階 | 面積 | 19.91坪(65.82m²) |
|---|---|---|---|
| 賃料/坪 | 相談 | 共益費/坪 | 賃料に含む |
| 月額賃料 (共益費込) |
相談 | 入居日 | 2026年4月上旬 |
| 敷金 (保証金) |
8ヶ月 | 礼金 | 無し |
| 償却費 | 1ヶ月 | 更新料 | 無し |
| 契約 | 定期借家(2年) | ||
ビル概要
| 物件名 | ACN日本橋PLACE(エーシーエヌニホンバシプレイス) | ||
|---|---|---|---|
| 所在地 | 中央区日本橋2-16-6 | ||
| 利用可能駅 | |||
| 利用可能 路線 |
|||
| 竣工 | 2019年4月 | リニューアル | - |
| 構造 | 鉄筋コンクリート(RC造) | 規模 | 1階/10階 |
| 耐震構造 | 新耐震 | ||
個別空調
新耐震
光ファイバー利用可
24時間利用可
OAフロア有り
要確認
アクセス
このビルの募集中フロア一覧
| 所在階 | 面積 | 入居予定 | 賃料 | 共益費 | 賃料総額 |
|---|---|---|---|---|---|
| 2階 | 19.91坪 | - | - | - | - |
| 3階 | 19.91坪 | 2026年10月下旬 | 相談 | 賃料に含む | - |
| 4階 | 19.91坪 | - | - | - | - |
| 5階 | 19.91坪 | - | - | - | - |
| 6階 | 19.91坪 | 即 | 相談 | 賃料に含む | - |
| 7階 | 19.91坪 | - | - | - | - |
| 8階 | 19.91坪 | - | - | - | - |
| 9階 | 19.91坪 | 2026年4月上旬 | 相談 | 賃料に含む | - |
| 10階 | 19.91坪 | - | - | - | - |

