- 東京の賃貸オフィス・貸事務所TOP
- 港区
- 浜松町・田町・三田・高輪・白金エリア
- VISTA浜松町(ヴィスタハママツチョウ)
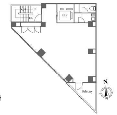
VISTA浜松町 9階 17.69坪 賃貸オフィス詳細
- 物件ID
- 96691
- VISTA浜松町(ヴィスタハママツチョウ) 9階 17.69坪
-
”VISTA浜松町(ヴィスタハママツチョウ)”は、 浜松町駅から徒歩4分、大門駅から徒歩5分、芝公園駅から徒歩6分、竹芝駅から徒歩9分、日の出駅から徒歩9分、三田駅から徒歩10分 の賃貸オフィスです。
2019年1月に竣工。構造は鉄骨造(S造)。耐震構造は新耐震。
利用可能路線はゆりかもめ、都営三田線、都営浅草線、都営大江戸線、日比谷線、山手線、東海道本線で、 用途は賃貸オフィスとなっています。最寄り駅は浜松町駅と大門駅と芝公園駅と竹芝駅と日の出駅と三田駅。 住所は港区浜松町2-7-13です。
ぜひ一度、内覧にお越しくださいませ。
フロア概要
| 階数 | 9階 | 面積 | 17.69坪(58.48m²) |
|---|---|---|---|
| 賃料/坪 | 25,000円/坪 | 共益費/坪 | 賃料に含む |
| 月額賃料 (共益費込) |
442,251円 | 入居日 | 2026年1月31日 |
| 敷金 (保証金) |
6ヶ月 | 礼金 | 無し |
| 償却費 | 1ヶ月 | 更新料 | 無し |
| 契約 | 定期借家(3年) | ||
ビル概要
| 物件名 | VISTA浜松町(ヴィスタハママツチョウ) | ||
|---|---|---|---|
| 所在地 | 港区浜松町2-7-13 | ||
| 利用可能駅 | |||
| 利用可能 路線 |
|||
| 竣工 | 2019年1月 | リニューアル | - |
| 構造 | 鉄骨造(S造) | 規模 | 1階/10階 |
| 耐震構造 | 新耐震 | ||
個別空調
新耐震
光ファイバー利用可
24時間利用可
OAフロア有り
要確認
アクセス
このビルの募集中フロア一覧
| 所在階 | 面積 | 入居予定 | 賃料 | 共益費 | 賃料総額 |
|---|---|---|---|---|---|
| 1階 | 35.39坪 | - | - | - | - |
| 3階 | 33.05坪 | - | - | - | - |
| 4階 | 17.69坪 | 即 | 20,000円/坪 | 無し | 353,800円/月 |
| 5階 | 17.69坪 | 2026年1月31日 | 23,000円/坪 | 賃料に含む | 406,871円/月 |
| 6階 | 17.69坪 | - | - | - | - |
| 7階 | 17.69坪 | - | - | - | - |
| 8階 | 17.69坪 | 2026年1月31日 | 25,000円/坪 | 賃料に含む | 442,251円/月 |
| 9階 | 17.69坪 | 2026年1月31日 | 25,000円/坪 | 賃料に含む | 442,251円/月 |
| 10階 | 17.69坪 | 即 | 24,000円/坪 | 無し | 424,561円/月 |

