- 東京の賃貸オフィス・貸事務所TOP
- 中央区
- 銀座エリア
- 銀座武蔵野ビル(ギンザムサシノビル)
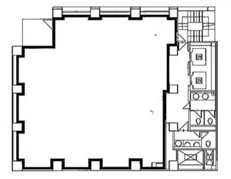
銀座武蔵野ビル 3階 52.11坪 賃貸オフィス詳細
- 物件ID
- 9591
- 銀座武蔵野ビル(ギンザムサシノビル) 3階 52.11坪
-
”銀座武蔵野ビル(ギンザムサシノビル)”は、 築地市場駅から徒歩3分、東銀座駅から徒歩4分、銀座駅から徒歩8分、汐留駅から徒歩8分、築地駅から徒歩8分、新橋駅から徒歩9分、新富町駅から徒歩10分 の賃貸オフィスです。
1993年3月に竣工。構造は鉄骨鉄筋コンクリート(SRC造)。耐震構造は新耐震。
利用可能路線は銀座線、日比谷線、山手線、東海道本線、有楽町線、都営大江戸線、都営三田線、ゆりかもめで、 用途は賃貸オフィスとなっています。最寄り駅は築地市場駅と東銀座駅と銀座駅と汐留駅と築地駅と新橋駅と新富町駅。 住所は中央区銀座7-17-1です。
ぜひ一度、内覧にお越しくださいませ。
フロア概要
| 階数 | 3階 | 面積 | 52.11坪(172.27m²) |
|---|---|---|---|
| 賃料/坪 | 相談 | 共益費/坪 | 相談 |
| 月額賃料 (共益費込) |
相談 | 入居日 | 2026年3月上旬 |
| 敷金 (保証金) |
10ヶ月 | 礼金 | 無し |
| 償却費 | 無し | 更新料 | 無し |
| 契約 | 普通借家 | ||
ビル概要
| 物件名 | 銀座武蔵野ビル(ギンザムサシノビル) | ||
|---|---|---|---|
| 所在地 | 中央区銀座7-17-1 | ||
| 利用可能駅 | |||
| 利用可能 路線 |
|||
| 竣工 | 1993年3月 | リニューアル | - |
| 構造 | 鉄骨鉄筋コンクリート(SRC造) | 規模 | B1階/9階 |
| 耐震構造 | 新耐震 | ||
個別空調
新耐震
光ファイバー利用可
24時間利用可
OAフロア有り
駐車場無し
アクセス
このビルの募集中フロア一覧
| 所在階 | 面積 | 入居予定 | 賃料 | 共益費 | 賃料総額 |
|---|---|---|---|---|---|
| 2階 | 52.11坪 | - | - | - | - |
| 3階 | 52.11坪 | 2026年3月上旬 | 相談 | 相談 | 相談 |
| 4階 | 52.11坪 | - | - | - | - |

