- 東京の賃貸オフィス・貸事務所TOP
- 港区
- 虎ノ門・神谷町エリア
- 第2秋山ビルディング(ダイ2アキヤマビルディング)
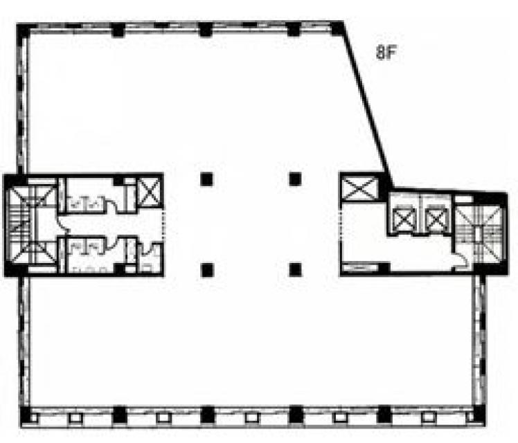
第2秋山ビルディング 8階 北側 86.48坪 賃貸オフィス詳細
- 物件ID
- 7748
- 第2秋山ビルディング(ダイ2アキヤマビルディング) 8階 86.48坪
-
”第2秋山ビルディング(ダイ2アキヤマビルディング)”は、 神谷町駅から徒歩6分、虎ノ門駅から徒歩7分、六本木一丁目駅から徒歩8分 の賃貸オフィスです。
1975年2月に竣工。構造は鉄骨鉄筋コンクリート(SRC造)。耐震構造は旧耐震。
利用可能路線は南北線、日比谷線、銀座線で、 用途は賃貸オフィスとなっています。最寄り駅は神谷町駅と虎ノ門駅と六本木一丁目駅。 住所は港区虎ノ門3-6-2です。
ぜひ一度、内覧にお越しくださいませ。
フロア概要
| 階数 | 8階 北側 | 面積 | 86.48坪(285.89m²) |
|---|---|---|---|
| 賃料/坪 | 相談 | 共益費/坪 | 賃料に含む |
| 月額賃料 (共益費込) |
相談 | 入居日 | 2026年1月1日 |
| 敷金 (保証金) |
相談 | 礼金 | 無し |
| 償却費 | 無し | 更新料 | 無し |
| 契約 | 定期借家(2年) | ||
ビル概要
| 物件名 | 第2秋山ビルディング(ダイ2アキヤマビルディング) | ||
|---|---|---|---|
| 所在地 | 港区虎ノ門3-6-2 | ||
| 利用可能駅 | |||
| 利用可能 路線 |
|||
| 竣工 | 1975年2月 | リニューアル | - |
| 構造 | 鉄骨鉄筋コンクリート(SRC造) | 規模 | B2階/8階 |
| 耐震構造 | 旧耐震 | ||
セントラル空調
旧耐震
光ファイバー利用可
24時間利用可
OAフロア有り
駐車場有り
アクセス
このビルの募集中フロア一覧
| 所在階 | 面積 | 入居予定 | 賃料 | 共益費 | 賃料総額 |
|---|---|---|---|---|---|
| B1階 | 20坪 | - | - | - | - |
| 1階 | 24.09坪 | 即 | 相談 | 賃料に含む | - |
| 2階 | 155.04坪 | - | - | - | - |
| 2階 | 79.56坪 | - | - | - | - |
| 2階 | 75.48坪 | - | - | - | - |
| 3階 | 39坪 | 即 | 相談 | 賃料に含む | - |
| 4階 | 171.18坪 | - | - | - | - |
| 5階 | 99.6坪 | 即 | 相談 | 賃料に含む | - |
| 5階 | 31.94坪 | 即 | 相談 | 賃料に含む | - |
| 5階 | 171.18坪 | - | - | - | - |
| 5階 | 34.46坪 | 即 | 相談 | 相談 | - |
| 6階 | 39坪 | - | - | - | - |
| 6階 | 58.8坪 | - | - | - | - |
| 6階 | 20.07坪 | - | - | - | - |
| 6階 | 96.88坪 | - | - | - | - |
| 6階 | 38.08坪 | - | - | - | - |
| 7階 | 74.3坪 | 即 | 相談 | 賃料に含む | - |
| 7階 | 48.44坪 | 即 | 相談 | 相談 | - |
| 8階 | 86.48坪 | 2026年1月1日 | 相談 | 賃料に含む | - |
もっと検索する
- 駅から検索
- エリアから検索

