- 東京の賃貸オフィス・貸事務所TOP
- 港区
- 新橋・汐留エリア
- 折田ビル(オリタビル)
折田ビル 3階 13.12坪 賃貸オフィス詳細
- 物件ID
- 7718
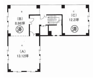
- 折田ビル(オリタビル) 3階 13.12坪
-
”折田ビル(オリタビル)”は、 御成門駅から徒歩3分、汐留駅から徒歩8分、新橋駅から徒歩9分、大門駅から徒歩9分 の賃貸オフィスです。
1974年3月に竣工。構造は鉄筋コンクリート(RC造)。耐震構造は旧耐震。
利用可能路線は東海道本線、ゆりかもめ、都営大江戸線、都営三田線で、 用途は賃貸オフィスとなっています。最寄り駅は御成門駅と汐留駅と新橋駅と大門駅。 住所は港区新橋6-2-9です。
ぜひ一度、内覧にお越しくださいませ。
フロア概要
| 階数 | 3階 | 面積 | 13.12坪(43.37m²) |
|---|---|---|---|
| 賃料/坪 | 12,500円/坪 | 共益費/坪 | 賃料に含む |
| 月額賃料 (共益費込) |
164,000円 | 入居日 | 即 |
| 敷金 (保証金) |
8ヶ月 | 礼金 | 無し |
| 償却費 | 2ヶ月 | 更新料 | 1ヶ月 |
| 契約 | 普通借家(2年) | ||
ビル概要
| 物件名 | 折田ビル(オリタビル) | ||
|---|---|---|---|
| 所在地 | 港区新橋6-2-9 | ||
| 利用可能駅 | |||
| 利用可能 路線 |
|||
| 竣工 | 1974年3月 | リニューアル | - |
| 構造 | 鉄筋コンクリート(RC造) | 規模 | 1階/7階 |
| 耐震構造 | 旧耐震 | ||
個別空調
旧耐震
光ファイバー利用可
時間制限有り
要確認
駐車場無し
アクセス
このビルの募集中フロア一覧
| 所在階 | 面積 | 入居予定 | 賃料 | 共益費 | 賃料総額 |
|---|---|---|---|---|---|
| 1階 | 24.4坪 | - | - | - | - |
| 2階 | 13.12坪 | - | - | - | - |
| 3階 | 13.12坪 | 即 | 12,500円/坪 | 賃料に含む | 164,000円/月 |
| 3階 | 15坪 | - | - | - | - |
| 4階 | 13.15坪 | - | - | - | - |
| 5階 | 13.12坪 | 即 | 12,500円/坪 | 賃料に含む | 164,000円/月 |
もっと検索する
- 駅から検索
- エリアから検索

