- 東京の賃貸オフィス・貸事務所TOP
- 港区
- 六本木・西麻布・麻布十番周辺エリア
- 第2富田ビル(ダイ2トミタビル)
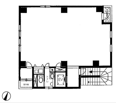
第2富田ビル 3階 33.41坪 賃貸オフィス詳細
- 物件ID
- 66813
- 第2富田ビル(ダイ2トミタビル) 3階 33.41坪
-
”第2富田ビル(ダイ2トミタビル)”は、 赤羽橋駅から徒歩2分、芝公園駅から徒歩7分、麻布十番駅から徒歩9分、神谷町駅から徒歩10分 の賃貸オフィスです。
1991年に竣工。構造は鉄骨鉄筋コンクリート(SRC造)。耐震構造は新耐震。
利用可能路線は日比谷線、南北線、都営大江戸線、都営三田線で、 用途は賃貸オフィスとなっています。最寄り駅は赤羽橋駅と芝公園駅と麻布十番駅と神谷町駅。 住所は港区東麻布1-25-3です。
ぜひ一度、内覧にお越しくださいませ。
フロア概要
| 階数 | 3階 | 面積 | 33.41坪(110.45m²) |
|---|---|---|---|
| 賃料/坪 | 13,500円/坪 | 共益費/坪 | 賃料に含む |
| 月額賃料 (共益費込) |
451,035円 | 入居日 | 即 |
| 敷金 (保証金) |
6ヶ月 | 礼金 | 無し |
| 償却費 | 2ヶ月 | 更新料 | 無し |
| 契約 | 定期借家(2年) | ||
ビル概要
| 物件名 | 第2富田ビル(ダイ2トミタビル) | ||
|---|---|---|---|
| 所在地 | 港区東麻布1-25-3 | ||
| 利用可能駅 | |||
| 利用可能 路線 |
|||
| 竣工 | 1991年 | リニューアル | - |
| 構造 | 鉄骨鉄筋コンクリート(SRC造) | 規模 | 1階/8階 |
| 耐震構造 | 新耐震 | ||
個別空調
新耐震
光ファイバー利用可
要確認
要確認
要確認
アクセス
このビルの募集中フロア一覧
| 所在階 | 面積 | 入居予定 | 賃料 | 共益費 | 賃料総額 |
|---|---|---|---|---|---|
| 2階 | 33.41坪 | - | - | - | - |
| 3階 | 33.41坪 | 即 | 13,500円/坪 | 賃料に含む | 451,035円/月 |
| 5階 | 33.41坪 | - | - | - | - |
| 6階 | 33.41坪 | - | - | - | - |
| 7階 | 33.41坪 | 即 | 13,500円/坪 | 賃料に含む | 451,035円/月 |

