- 東京の賃貸オフィス・貸事務所TOP
- 中央区
- 銀座エリア
- ムサシ7ビル(ムサシ7ビル)
ムサシ7ビル 5階 33.6坪 賃貸オフィス詳細
- 物件ID
- 66606
- ムサシ7ビル(ムサシ7ビル) 5階 33.6坪
-
”ムサシ7ビル(ムサシ7ビル)”は、 銀座駅から徒歩4分、日比谷駅から徒歩6分、内幸町駅から徒歩6分、新橋駅から徒歩8分、有楽町駅から徒歩8分、東銀座駅から徒歩8分、銀座一丁目駅から徒歩9分 の賃貸オフィスです。
1986年10月に竣工。構造は鉄骨鉄筋コンクリート(SRC造)。耐震構造は新耐震。
利用可能路線は東海道本線、山手線、銀座線、日比谷線、有楽町線、都営三田線で、 用途は賃貸オフィスとなっています。最寄り駅は銀座駅と日比谷駅と内幸町駅と新橋駅と有楽町駅と東銀座駅と銀座一丁目駅。 住所は中央区銀座7-2-4です。
ぜひ一度、内覧にお越しくださいませ。
フロア概要
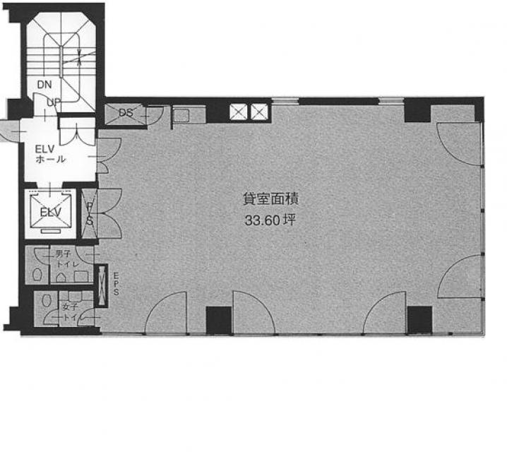
| 階数 | 5階 | 面積 | 33.6坪(111.07m²) |
|---|---|---|---|
| 賃料/坪 | 25,000円/坪 | 共益費/坪 | 3,000円/坪 |
| 月額賃料 (共益費込) |
940,800円 | 入居日 | 即 |
| 敷金 (保証金) |
10ヶ月 | 礼金 | 無し |
| 償却費 | 1ヶ月 | 更新料 | 0ヶ月 |
| 契約 | 定期借家(5年) | ||
ビル概要
| 物件名 | ムサシ7ビル(ムサシ7ビル) | ||
|---|---|---|---|
| 所在地 | 中央区銀座7-2-4 | ||
| 利用可能駅 | |||
| 利用可能 路線 |
|||
| 竣工 | 1986年10月 | リニューアル | - |
| 構造 | 鉄骨鉄筋コンクリート(SRC造) | 規模 | B2階/7階 |
| 耐震構造 | 新耐震 | ||
個別空調
新耐震
光ファイバー利用可
24時間利用可
要確認
駐車場有り
アクセス
このビルの募集中フロア一覧
| 所在階 | 面積 | 入居予定 | 賃料 | 共益費 | 賃料総額 |
|---|---|---|---|---|---|
| 4階 | 33.6坪 | 即 | 25,000円/坪 | 3,000円/坪 | 840,000円/月 |
| 5階 | 33.6坪 | 即 | 25,000円/坪 | 3,000円/坪 | 840,000円/月 |
| 6階 | 33.6坪 | - | - | - | - |

