- 東京の賃貸オフィス・貸事務所TOP
- 千代田区
- 神田・秋葉原・岩本町エリア
- A-RISE神田(アライズカンダ)
A-RISE神田 8階 67.04坪 賃貸オフィス詳細
- 物件ID
- 66553
- A-RISE神田(アライズカンダ) 8階 67.04坪
-
”A-RISE神田(アライズカンダ)”は、 小伝馬町駅から徒歩3分、岩本町駅から徒歩5分、馬喰町駅から徒歩5分、新日本橋駅から徒歩9分、人形町駅から徒歩10分、三越前駅から徒歩10分、神田駅から徒歩10分、浅草橋駅から徒歩10分 の賃貸オフィスです。
2015年3月に竣工。構造は鉄骨造(S造)。耐震構造は新耐震(制震)。
利用可能路線は都営新宿線、半蔵門線、日比谷線、銀座線、総武本線、中央・総武線、山手線で、 用途は賃貸オフィスとなっています。最寄り駅は小伝馬町駅と岩本町駅と馬喰町駅と新日本橋駅と人形町駅と三越前駅と神田駅と浅草橋駅。 住所は千代田区岩本町1-11-2です。
ぜひ一度、内覧にお越しくださいませ。
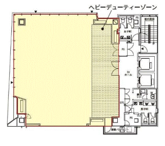
フロア概要
| 階数 | 8階 | 面積 | 67.04坪(221.62m²) |
|---|---|---|---|
| 賃料/坪 | 相談 | 共益費/坪 | 3,500円/坪 |
| 月額賃料 (共益費込) |
相談 | 入居日 | 2026年1月1日 |
| 敷金 (保証金) |
12ヶ月 | 礼金 | 無し |
| 償却費 | 無し | 更新料 | 無し |
| 契約 | 普通借家(2年) | ||
ビル概要
| 物件名 | A-RISE神田(アライズカンダ) | ||
|---|---|---|---|
| 所在地 | 千代田区岩本町1-11-2 | ||
| 利用可能駅 | |||
| 利用可能 路線 |
|||
| 竣工 | 2015年3月 | リニューアル | - |
| 構造 | 鉄骨造(S造) | 規模 | 1階/8階 |
| 耐震構造 | 新耐震(制震) | ||
個別空調
新耐震(制震)
光ファイバー利用可
24時間利用可
OAフロア有り
駐車場有り
アクセス
このビルの募集中フロア一覧
| 所在階 | 面積 | 入居予定 | 賃料 | 共益費 | 賃料総額 |
|---|---|---|---|---|---|
| 3階 | 64.7坪 | - | - | - | - |
| 4階 | 65.12坪 | - | - | - | - |
| 5階 | 65.12坪 | - | - | - | - |
| 6階 | 65.12坪 | - | - | - | - |
| 7階 | 53.92坪 | - | - | - | - |
| 8階 | 67.04坪 | 2026年1月1日 | 相談 | 3,500円/坪 | - |

