- 東京の賃貸オフィス・貸事務所TOP
- 港区
- 新橋・汐留エリア
- 今朝ビル(イマアサビル)
今朝ビル 1階 67.48坪 賃貸オフィス詳細
- 物件ID
- 65232
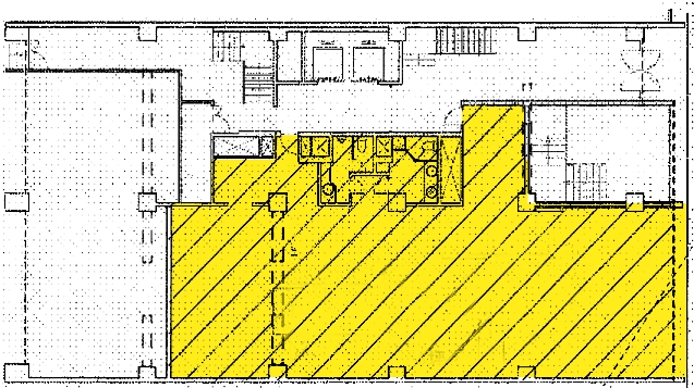
- 今朝ビル(イマアサビル) 1階 67.48坪
-
”今朝ビル(イマアサビル)”は、 新橋駅から徒歩3分、汐留駅から徒歩4分、内幸町駅から徒歩8分、築地市場駅から徒歩8分、東銀座駅から徒歩9分、銀座駅から徒歩9分 の賃貸オフィスです。
1964年5月に竣工。構造は鉄筋コンクリート(RC造)。耐震構造は旧耐震(補強済み)。
利用可能路線は都営三田線、都営大江戸線、日比谷線、銀座線、東海道本線で、 用途は賃貸オフィスとなっています。最寄り駅は新橋駅と汐留駅と内幸町駅と築地市場駅と東銀座駅と銀座駅。 住所は港区東新橋1-1-21です。
ぜひ一度、内覧にお越しくださいませ。
フロア概要
| 階数 | 1階 | 面積 | 67.48坪(223.08m²) |
|---|---|---|---|
| 賃料/坪 | 57,500円/坪 | 共益費/坪 | 賃料に含む |
| 月額賃料 (共益費込) |
3,880,100円 | 入居日 | 即 |
| 敷金 (保証金) |
10ヶ月 | 礼金 | 無し |
| 償却費 | 1ヶ月 | 更新料 | 無し |
| 契約 | 普通借家(2年) | ||
ビル概要
| 物件名 | 今朝ビル(イマアサビル) | ||
|---|---|---|---|
| 所在地 | 港区東新橋1-1-21 | ||
| 利用可能駅 | |||
| 利用可能 路線 |
|||
| 竣工 | 1964年5月 | リニューアル | - |
| 構造 | 鉄筋コンクリート(RC造) | 規模 | B1階/9階 |
| 耐震構造 | 旧耐震(補強済み) | ||
空調併用
旧耐震(補強済み)
光ファイバー利用可
24時間利用可
OAフロア有り
駐車場有り
アクセス
このビルの募集中フロア一覧
| 所在階 | 面積 | 入居予定 | 賃料 | 共益費 | 賃料総額 |
|---|---|---|---|---|---|
| 1階 | 67.48坪 | 即 | 57,500円/坪 | 賃料に含む | 3,880,100円/月 |
| 3階 | 126.16坪 | - | - | - | - |
| 4階 | 126.16坪 | - | - | - | - |
| 5階 | 126.18坪 | - | - | - | - |
| 5階 | 77.84坪 | - | - | - | - |
| 7階 | 126.17坪 | - | - | - | - |
| 8階 | 126.17坪 | - | - | - | - |
| 9階 | 77.84坪 | - | - | - | - |
| 9階 | 126.18坪 | - | - | - | - |

