- 東京の賃貸オフィス・貸事務所TOP
- 千代田区
- 内神田・小川町・淡路町エリア
- 楠本第2ビル(クスモトダイ2ビル)
楠本第2ビル 8階 AB 90.2坪 賃貸オフィス詳細
- 物件ID
- 65182
- 楠本第2ビル(クスモトダイ2ビル) 8階 90.2坪
-
”楠本第2ビル(クスモトダイ2ビル)”は、 大手町駅から徒歩6分、神田駅から徒歩7分、淡路町駅から徒歩8分 の賃貸オフィスです。
1962年10月に竣工。構造は鉄骨鉄筋コンクリート(SRC造)。耐震構造は旧耐震(補強済み)。
利用可能路線は山手線、丸ノ内線で、 用途は賃貸オフィスとなっています。最寄り駅は大手町駅と神田駅と淡路町駅。 住所は千代田区内神田1-2-8です。
ぜひ一度、内覧にお越しくださいませ。
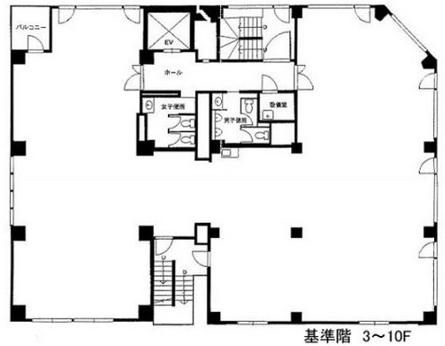
フロア概要
| 階数 | 8階 AB | 面積 | 90.2坪(298.18m²) |
|---|---|---|---|
| 賃料/坪 | 16,000円/坪 | 共益費/坪 | 4,000円/坪 |
| 月額賃料 (共益費込) |
1,804,000円 | 入居日 | 即 |
| 敷金 (保証金) |
12ヶ月 | 礼金 | 無し |
| 償却費 | 無し | 更新料 | 無し |
| 契約 | 定期借家(2年) | ||
ビル概要
| 物件名 | 楠本第2ビル(クスモトダイ2ビル) | ||
|---|---|---|---|
| 所在地 | 千代田区内神田1-2-8 | ||
| 利用可能駅 | |||
| 利用可能 路線 |
|||
| 竣工 | 1962年10月 | リニューアル | 2002年 |
| 構造 | 鉄骨鉄筋コンクリート(SRC造) | 規模 | B1階/11階 |
| 耐震構造 | 旧耐震(補強済み) | ||
個別空調
旧耐震(補強済み)
光ファイバー利用可
24時間利用可
OAフロア有り
駐車場無し
アクセス
このビルの募集中フロア一覧
| 所在階 | 面積 | 入居予定 | 賃料 | 共益費 | 賃料総額 |
|---|---|---|---|---|---|
| 2階 | 84.1坪 | 即 | 16,000円/坪 | 4,000円/坪 | 1,345,600円/月 |
| 2階 | 35.5坪 | - | - | - | - |
| 2階 | 48.6坪 | - | - | - | - |
| 4階 | 51.2坪 | - | - | - | - |
| 5階 | 39坪 | - | - | - | - |
| 5階 | 51.2坪 | - | - | - | - |
| 5階 | 39坪 | - | - | - | - |
| 6階 | 90.2坪 | 即 | 16,000円/坪 | 4,000円/坪 | 1,443,200円/月 |
| 6階 | 39坪 | - | - | - | - |
| 7階 | 90.2坪 | - | - | - | - |
| 7階 | 51.2坪 | 即 | 16,000円/坪 | 4,000円/坪 | 819,200円/月 |
| 7階 | 39坪 | - | - | - | - |
| 8階 | 39坪 | - | - | - | - |
| 8階 | 90.2坪 | 即 | 16,000円/坪 | 4,000円/坪 | 1,443,200円/月 |
| 10階 | 39坪 | - | - | - | - |

