- 東京の賃貸オフィス・貸事務所TOP
- 中央区
- 日本橋・八重洲・京橋周辺エリア
- 明海京橋ビル(メイカイキョウバシビル)
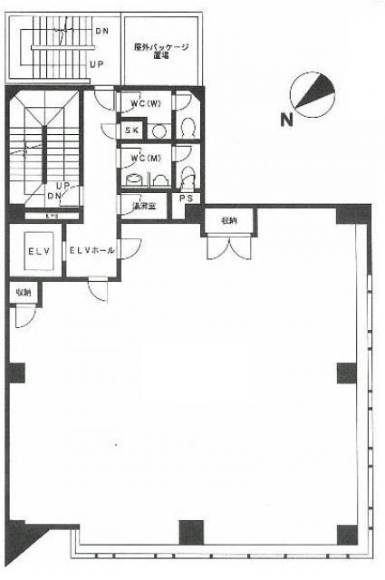
明海京橋ビル 5階 58.28坪 賃貸オフィス詳細
- 物件ID
- 65159
- 明海京橋ビル(メイカイキョウバシビル) 5階 58.28坪
-
”明海京橋ビル(メイカイキョウバシビル)”は、 京橋駅から徒歩4分、八丁堀駅から徒歩6分、新富町駅から徒歩7分、銀座一丁目駅から徒歩7分、築地駅から徒歩10分、日本橋駅から徒歩10分 の賃貸オフィスです。
1985年6月に竣工。構造は鉄骨鉄筋コンクリート(SRC造)。耐震構造は新耐震。
利用可能路線は有楽町線、日比谷線、銀座線、京葉線で、 用途は賃貸オフィスとなっています。最寄り駅は京橋駅と八丁堀駅と新富町駅と銀座一丁目駅と築地駅と日本橋駅。 住所は中央区京橋2-18-2です。
ぜひ一度、内覧にお越しくださいませ。
フロア概要
| 階数 | 5階 | 面積 | 58.28坪(192.66m²) |
|---|---|---|---|
| 賃料/坪 | 17,000円/坪 | 共益費/坪 | 3,000円/坪 |
| 月額賃料 (共益費込) |
1,165,600円 | 入居日 | 即 |
| 敷金 (保証金) |
10ヶ月 | 礼金 | 無し |
| 償却費 | 無し | 更新料 | 無し |
| 契約 | 普通借家(2年) | ||
ビル概要
| 物件名 | 明海京橋ビル(メイカイキョウバシビル) | ||
|---|---|---|---|
| 所在地 | 中央区京橋2-18-2 | ||
| 利用可能駅 | |||
| 利用可能 路線 |
|||
| 竣工 | 1985年6月 | リニューアル | - |
| 構造 | 鉄骨鉄筋コンクリート(SRC造) | 規模 | B1階/8階 |
| 耐震構造 | 新耐震 | ||
個別空調
新耐震
光ファイバー利用可
24時間利用可
要確認
駐車場無し
アクセス
このビルの募集中フロア一覧
| 所在階 | 面積 | 入居予定 | 賃料 | 共益費 | 賃料総額 |
|---|---|---|---|---|---|
| 2階 | 58.28坪 | - | - | - | - |
| 5階 | 58.28坪 | 即 | 17,000円/坪 | 3,000円/坪 | 990,760円/月 |
| 6階 | 58.28坪 | - | - | - | - |
| 7階 | 58.28坪 | - | - | - | - |
| 7階 | 16.73坪 | - | - | - | - |
| 8階 | 58.28坪 | - | - | - | - |

