- 東京の賃貸オフィス・貸事務所TOP
- 新宿区
- 新宿・御苑・歌舞伎町エリア
- KOA新宿(ケイオーエイシンジュク)
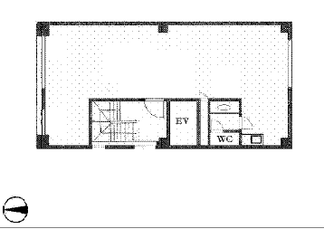
KOA新宿 3階 23.42坪 賃貸オフィス詳細
- 物件ID
- 65023
- KOA新宿(ケイオーエイシンジュク) 3階 23.42坪
-
”KOA新宿(ケイオーエイシンジュク)”は、 新宿御苑前駅から徒歩1分、新宿三丁目駅から徒歩7分 の賃貸オフィスです。
1987年5月に竣工。構造は鉄骨造(S造)。耐震構造は新耐震。
利用可能路線は丸ノ内線で、 用途は賃貸オフィスとなっています。最寄り駅は新宿御苑前駅と新宿三丁目駅。 住所は新宿区新宿1-14-10です。
ぜひ一度、内覧にお越しくださいませ。
フロア概要
| 階数 | 3階 | 面積 | 23.42坪(77.42m²) |
|---|---|---|---|
| 賃料/坪 | 15,000円/坪 | 共益費/坪 | 賃料に含む |
| 月額賃料 (共益費込) |
351,300円 | 入居日 | 2026年3月上旬 |
| 敷金 (保証金) |
6ヶ月 | 礼金 | 1ヶ月 |
| 償却費 | 1ヶ月 | 更新料 | 1ヶ月 |
| 契約 | 普通借家(2年) | ||
ビル概要
| 物件名 | KOA新宿(ケイオーエイシンジュク) | ||
|---|---|---|---|
| 所在地 | 新宿区新宿1-14-10 | ||
| 利用可能駅 | |||
| 利用可能 路線 |
|||
| 竣工 | 1987年5月 | リニューアル | - |
| 構造 | 鉄骨造(S造) | 規模 | B1階/5階 |
| 耐震構造 | 新耐震 | ||
個別空調
新耐震
光ファイバー利用可
24時間利用可
要確認
要確認
アクセス
このビルの募集中フロア一覧
| 所在階 | 面積 | 入居予定 | 賃料 | 共益費 | 賃料総額 |
|---|---|---|---|---|---|
| 3階 | 23.42坪 | 2026年3月上旬 | 15,000円/坪 | 賃料に含む | 351,300円/月 |
もっと検索する
- 駅から検索
- エリアから検索

