- 東京の賃貸オフィス・貸事務所TOP
- 港区
- 新橋・汐留エリア
- 第2一松ビル(ダイ2イチマツビル)
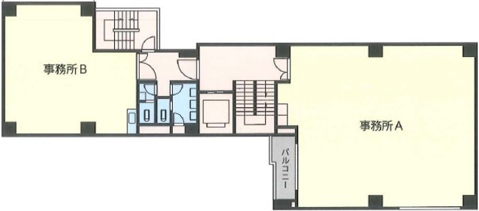
第2一松ビル 2階 B室 14.78坪 賃貸オフィス詳細
- 物件ID
- 64084
- 第2一松ビル(ダイ2イチマツビル) 2階 14.78坪
-
”第2一松ビル(ダイ2イチマツビル)”は、 御成門駅から徒歩4分、新橋駅から徒歩7分、汐留駅から徒歩8分、大門駅から徒歩9分、神谷町駅から徒歩10分、内幸町駅から徒歩10分 の賃貸オフィスです。
1983年9月に竣工。構造は鉄骨鉄筋コンクリート(SRC造)。耐震構造は新耐震。
利用可能路線は都営大江戸線、日比谷線、東海道本線、都営三田線で、 用途は賃貸オフィスとなっています。最寄り駅は御成門駅と新橋駅と汐留駅と大門駅と神谷町駅と内幸町駅。 住所は港区新橋5-25-3です。
ぜひ一度、内覧にお越しくださいませ。
フロア概要
| 階数 | 2階 B室 | 面積 | 14.78坪(48.86m²) |
|---|---|---|---|
| 賃料/坪 | 15,562円/坪 | 共益費/坪 | 賃料に含む |
| 月額賃料 (共益費込) |
230,000円 | 入居日 | 2026年4月上旬 |
| 敷金 (保証金) |
8ヶ月 | 礼金 | 無し |
| 償却費 | 2ヶ月 | 更新料 | 無し |
| 契約 | 定期借家 | ||
ビル概要
| 物件名 | 第2一松ビル(ダイ2イチマツビル) | ||
|---|---|---|---|
| 所在地 | 港区新橋5-25-3 | ||
| 利用可能駅 | |||
| 利用可能 路線 |
|||
| 竣工 | 1983年9月 | リニューアル | - |
| 構造 | 鉄骨鉄筋コンクリート(SRC造) | 規模 | 1階/8階 |
| 耐震構造 | 新耐震 | ||
個別空調
新耐震
光ファイバー利用可
24時間利用可
OAフロア無し
駐車場無し
アクセス
このビルの募集中フロア一覧
| 所在階 | 面積 | 入居予定 | 賃料 | 共益費 | 賃料総額 |
|---|---|---|---|---|---|
| 1階 | 18.45坪 | - | - | - | - |
| 2階 | 14.78坪 | 2026年4月上旬 | 15,562円/坪 | 賃料に含む | 230,000円/月 |
| 2階 | 29.71坪 | - | - | - | - |
| 3階 | 14.78坪 | - | - | - | - |
| 3階 | 29.71坪 | - | - | - | - |
| 4階 | 29.71坪 | - | - | - | - |
| 5階 | 29.71坪 | - | - | - | - |
| 5階 | 14.78坪 | - | - | - | - |
| 6階 | 29.71坪 | 2026年4月上旬 | 16,156円/坪 | 賃料に含む | 480,000円/月 |
| 7階 | 14.78坪 | - | - | - | - |
もっと検索する
- 駅から検索
- エリアから検索

