- 東京の賃貸オフィス・貸事務所TOP
- 台東区
- 上野・御徒町周辺エリア
- 三翠ビル(サンスイビル)
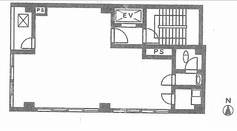
三翠ビル 2階 19.13坪 賃貸オフィス詳細
- 物件ID
- 63608
- 三翠ビル(サンスイビル) 2階 19.13坪
-
”三翠ビル(サンスイビル)”は、 稲荷町駅から徒歩4分、上野駅から徒歩4分、新御徒町駅から徒歩7分、京成上野駅から徒歩7分、御徒町駅から徒歩8分、上野広小路駅から徒歩9分 の賃貸オフィスです。
1977年5月に竣工。構造は鉄骨造(S造)。
利用可能路線は都営大江戸線、銀座線、京成本線、山手線で、 用途は賃貸オフィスとなっています。最寄り駅は稲荷町駅と上野駅と新御徒町駅と京成上野駅と御徒町駅と上野広小路駅。 住所は台東区東上野3-37-6です。
ぜひ一度、内覧にお越しくださいませ。
フロア概要
| 階数 | 2階 | 面積 | 19.13坪(63.24m²) |
|---|---|---|---|
| 賃料/坪 | 12,546円/坪 | 共益費/坪 | 無し |
| 月額賃料 (共益費込) |
240,000円 | 入居日 | 2026年11月下旬 |
| 敷金 (保証金) |
4ヶ月 | 礼金 | 1ヶ月 |
| 償却費 | 無し | 更新料 | 無し |
| 契約 | 定期借家(2年) | ||
ビル概要
| 物件名 | 三翠ビル(サンスイビル) | ||
|---|---|---|---|
| 所在地 | 台東区東上野3-37-6 | ||
| 利用可能駅 | |||
| 利用可能 路線 |
|||
| 竣工 | 1977年5月 | リニューアル | - |
| 構造 | 鉄骨造(S造) | 規模 | 1階/7階 |
| 耐震構造 | 要確認 | ||
要確認
要確認
要確認
要確認
要確認
要確認
アクセス
このビルの募集中フロア一覧
| 所在階 | 面積 | 入居予定 | 賃料 | 共益費 | 賃料総額 |
|---|---|---|---|---|---|
| 2階 | 19.13坪 | 2026年11月下旬 | 12,546円/坪 | 無し | 240,000円/月 |
| 3階 | 19.13坪 | - | - | - | - |
| 4階 | 19.13坪 | - | - | - | - |
| 5階 | 19.13坪 | - | - | - | - |

