- 東京の賃貸オフィス・貸事務所TOP
- 渋谷区
- 恵比寿・代官山・広尾周辺エリア
- マリオン広尾ビル(マリオンヒロオビル)
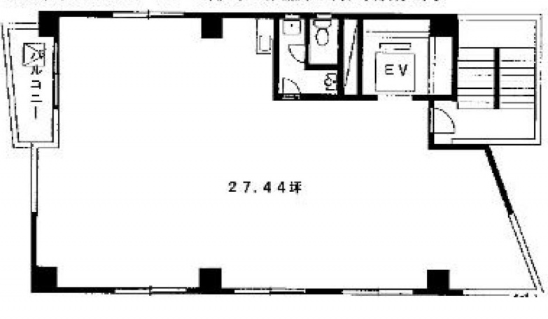
マリオン広尾ビル 5階 27.44坪 賃貸オフィス詳細
- 物件ID
- 63278
- マリオン広尾ビル(マリオンヒロオビル) 5階 27.44坪
-
”マリオン広尾ビル(マリオンヒロオビル)”は、 広尾駅から徒歩6分 の賃貸オフィスです。
1993年3月に竣工。構造は鉄骨鉄筋コンクリート(SRC造)。耐震構造は新耐震。
利用可能路線は日比谷線で、 用途は賃貸オフィスとなっています。最寄り駅は広尾駅。 住所は渋谷区広尾5-19-11です。
ぜひ一度、内覧にお越しくださいませ。
フロア概要
| 階数 | 5階 | 面積 | 27.44坪(90.71m²) |
|---|---|---|---|
| 賃料/坪 | 15,000円/坪 | 共益費/坪 | 賃料に含む |
| 月額賃料 (共益費込) |
411,600円 | 入居日 | 即 |
| 敷金 (保証金) |
8ヶ月 | 礼金 | 無し |
| 償却費 | 無し | 更新料 | 無し |
| 契約 | 普通借家(2年) | ||
ビル概要
| 物件名 | マリオン広尾ビル(マリオンヒロオビル) | ||
|---|---|---|---|
| 所在地 | 渋谷区広尾5-19-11 | ||
| 利用可能駅 |
|
||
| 利用可能 路線 |
|||
| 竣工 | 1993年3月 | リニューアル | - |
| 構造 | 鉄骨鉄筋コンクリート(SRC造) | 規模 | B1階/9階 |
| 耐震構造 | 新耐震 | ||
空調有り
新耐震
光ファイバー利用可
24時間利用可
OAフロア有り
要確認
アクセス
このビルの募集中フロア一覧
| 所在階 | 面積 | 入居予定 | 賃料 | 共益費 | 賃料総額 |
|---|---|---|---|---|---|
| 1階 | 23.05坪 | - | - | - | - |
| 4階 | 27.44坪 | - | - | - | - |
| 5階 | 27.44坪 | 即 | 15,000円/坪 | 賃料に含む | 411,600円/月 |
| 6階 | 27.44坪 | 即 | 15,000円/坪 | 賃料に含む | 411,600円/月 |
| 7階 | 27.44坪 | - | - | - | - |
もっと検索する
- 駅から検索
- エリアから検索

