- 東京の賃貸オフィス・貸事務所TOP
- 台東区
- 上野・御徒町周辺エリア
- 朝日生命上野ビル(アサヒセイメイウエノビル)
朝日生命上野ビル 6階 50.98坪 賃貸オフィス詳細
- 物件ID
- 60973
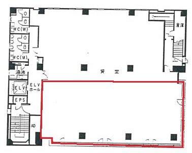
- 朝日生命上野ビル(アサヒセイメイウエノビル) 6階 50.98坪
-
”朝日生命上野ビル(アサヒセイメイウエノビル)”は、 京成上野駅から徒歩2分、上野広小路駅から徒歩4分、湯島駅から徒歩5分、御徒町駅から徒歩5分、上野駅から徒歩7分 の賃貸オフィスです。
1979年3月に竣工。構造は鉄骨鉄筋コンクリート(SRC造)。
利用可能路線は千代田線、銀座線、京成本線、山手線で、 用途は賃貸オフィスとなっています。最寄り駅は京成上野駅と上野広小路駅と湯島駅と御徒町駅と上野駅。 住所は台東区上野2-13-10です。
ぜひ一度、内覧にお越しくださいませ。
フロア概要
| 階数 | 6階 | 面積 | 50.98坪(168.53m²) |
|---|---|---|---|
| 賃料/坪 | 相談 | 共益費/坪 | 相談 |
| 月額賃料 (共益費込) |
相談 | 入居日 | 2026年1月未定 |
| 敷金 (保証金) |
相談 | 礼金 | 無し |
| 償却費 | 相談 | 更新料 | 相談 |
| 契約 | 不明 | ||
ビル概要
| 物件名 | 朝日生命上野ビル(アサヒセイメイウエノビル) | ||
|---|---|---|---|
| 所在地 | 台東区上野2-13-10 | ||
| 利用可能駅 | |||
| 利用可能 路線 |
|||
| 竣工 | 1979年3月 | リニューアル | - |
| 構造 | 鉄骨鉄筋コンクリート(SRC造) | 規模 | 1階/9階 |
| 耐震構造 | 要確認 | ||
要確認
要確認
要確認
要確認
要確認
駐車場有り
アクセス
このビルの募集中フロア一覧
| 所在階 | 面積 | 入居予定 | 賃料 | 共益費 | 賃料総額 |
|---|---|---|---|---|---|
| 4階 | 39.49坪 | - | - | - | - |
| 5階 | 64.52坪 | - | - | - | - |
| 6階 | 50.98坪 | 2026年1月未定 | 相談 | 相談 | - |
