- 東京の賃貸オフィス・貸事務所TOP
- 渋谷区
- 代々木・千駄ヶ谷・北参道エリア
- 西新宿松屋ビル(ニシシンジュクマツヤビル)
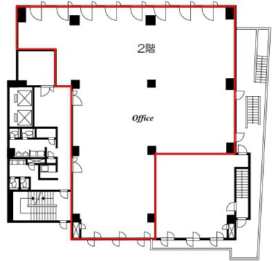
西新宿松屋ビル 2階 104.7坪 賃貸オフィス詳細
- 物件ID
- 60841
- 西新宿松屋ビル(ニシシンジュクマツヤビル) 2階 104.7坪
-
”西新宿松屋ビル(ニシシンジュクマツヤビル)”は、 初台駅から徒歩5分、参宮橋駅から徒歩8分 の賃貸オフィスです。
1987年5月に竣工。構造は鉄骨鉄筋コンクリート(SRC造)。耐震構造は新耐震。
利用可能路線は京王京王線、小田急小田原線で、 用途は賃貸オフィスとなっています。最寄り駅は初台駅と参宮橋駅。 住所は渋谷区代々木4-31-6です。
ぜひ一度、内覧にお越しくださいませ。
フロア概要
| 階数 | 2階 | 面積 | 104.7坪(346.12m²) |
|---|---|---|---|
| 賃料/坪 | 相談 | 共益費/坪 | 4,330円/坪 |
| 月額賃料 (共益費込) |
相談 | 入居日 | 2026年1月17日 |
| 敷金 (保証金) |
12ヶ月 | 礼金 | 無し |
| 償却費 | 無し | 更新料 | 無し |
| 契約 | 普通借家(2年) | ||
ビル概要
| 物件名 | 西新宿松屋ビル(ニシシンジュクマツヤビル) | ||
|---|---|---|---|
| 所在地 | 渋谷区代々木4-31-6 | ||
| 利用可能駅 | |||
| 利用可能 路線 |
|||
| 竣工 | 1987年5月 | リニューアル | - |
| 構造 | 鉄骨鉄筋コンクリート(SRC造) | 規模 | B1階/9階 |
| 耐震構造 | 新耐震 | ||
セントラル空調
新耐震
光ファイバー利用可
24時間利用可
OAフロア有り
駐車場有り
アクセス
このビルの募集中フロア一覧
| 所在階 | 面積 | 入居予定 | 賃料 | 共益費 | 賃料総額 |
|---|---|---|---|---|---|
| 1階 | 40.46坪 | 2026年1月17日 | 相談 | 4,330円/坪 | - |
| 2階 | 104.7坪 | 2026年1月17日 | 相談 | 4,330円/坪 | - |
| 3階 | 125.46坪 | - | - | - | - |
| 3階 | 124.12坪 | - | - | - | - |
| 4階 | 66.3坪 | - | - | - | - |
| 4階 | 59.16坪 | - | - | - | - |
| 4階 | 124.12坪 | - | - | - | - |
| 5階 | 124.12坪 | - | - | - | - |
| 5階 | 125.46坪 | - | - | - | - |
| 6階 | 125.46坪 | - | - | - | - |
| 6階 | 124.12坪 | - | - | - | - |
| 7階 | 125.46坪 | - | - | - | - |
| 7階 | 61.09坪 | - | - | - | - |
| 8階 | 125.46坪 | - | - | - | - |
| 9階 | 110.11坪 | - | - | - | - |
| 9階 | 124.12坪 | - | - | - | - |
もっと検索する
- 駅から検索
- エリアから検索

