- 東京の賃貸オフィス・貸事務所TOP
- 千代田区
- 内神田・小川町・淡路町エリア
- 神田高木ビル(カンダタカギビル)
神田高木ビル 3階 43.05坪 賃貸オフィス詳細
- 物件ID
- 59755
- 神田高木ビル(カンダタカギビル) 3階 43.05坪
-
”神田高木ビル(カンダタカギビル)”は、 大手町駅から徒歩7分、神田駅から徒歩8分、淡路町駅から徒歩8分、竹橋駅から徒歩8分、神保町駅から徒歩10分 の賃貸オフィスです。
1988年10月に竣工。構造は鉄骨鉄筋コンクリート(SRC造)。耐震構造は新耐震。
利用可能路線は山手線、丸ノ内線、東西線、半蔵門線で、 用途は賃貸オフィスとなっています。最寄り駅は大手町駅と神田駅と淡路町駅と竹橋駅と神保町駅。 住所は千代田区神田錦町1-17-1です。
ぜひ一度、内覧にお越しくださいませ。
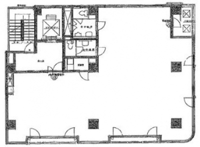
フロア概要
| 階数 | 3階 | 面積 | 43.05坪(142.31m²) |
|---|---|---|---|
| 賃料/坪 | 相談 | 共益費/坪 | 賃料に含む |
| 月額賃料 (共益費込) |
相談 | 入居日 | 即 |
| 敷金 (保証金) |
6ヶ月 | 礼金 | 無し |
| 償却費 | 1ヶ月 | 更新料 | 無し |
| 契約 | 定期借家(3年) | ||
| 備考 | 日本商業不動産保証との保証契約が必須になりますが、保証料はかかりません | ||
ビル概要
| 物件名 | 神田高木ビル(カンダタカギビル) | ||
|---|---|---|---|
| 所在地 | 千代田区神田錦町1-17-1 | ||
| 利用可能駅 | |||
| 利用可能 路線 |
|||
| 竣工 | 1988年10月 | リニューアル | - |
| 構造 | 鉄骨鉄筋コンクリート(SRC造) | 規模 | B1階/7階 |
| 耐震構造 | 新耐震 | ||
個別空調
新耐震
光ファイバー利用可
24時間利用可
OAフロア無し
要確認
アクセス
このビルの募集中フロア一覧
| 所在階 | 面積 | 入居予定 | 賃料 | 共益費 | 賃料総額 |
|---|---|---|---|---|---|
| B1階 | 29.7坪 | - | - | - | - |
| 1階 | 32坪 | - | - | - | - |
| 2階 | 43坪 | - | - | - | - |
| 3階 | 43.05坪 | 即 | 相談 | 賃料に含む | - |
| 5階 | 43坪 | - | - | - | - |
| 6階 | 46.2坪 | - | - | - | - |

