- 東京の賃貸オフィス・貸事務所TOP
- 中央区
- 茅場町・八丁堀・新川・兜町周辺エリア
- JRE茅場町二丁目ビル(ジェーアールイーカヤバチョウ2チョウメビル)
JRE茅場町二丁目ビル 7階 91.6坪 賃貸オフィス詳細
- 物件ID
- 59028
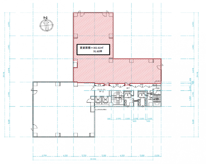
- JRE茅場町二丁目ビル(ジェーアールイーカヤバチョウ2チョウメビル) 7階 91.6坪
-
”JRE茅場町二丁目ビル(ジェーアールイーカヤバチョウ2チョウメビル)”は、 茅場町駅から徒歩1分、八丁堀駅から徒歩7分、水天宮前駅から徒歩8分、日本橋駅から徒歩9分 の賃貸オフィスです。
1991年3月に竣工。構造は鉄骨鉄筋コンクリート(SRC造)。耐震構造は新耐震。
利用可能路線は半蔵門線、日比谷線、銀座線、京葉線で、 用途は賃貸オフィスとなっています。最寄り駅は茅場町駅と八丁堀駅と水天宮前駅と日本橋駅。 住所は中央区日本橋茅場町2-13-13です。
ぜひ一度、内覧にお越しくださいませ。
フロア概要
| 階数 | 7階 | 面積 | 91.6坪(302.81m²) |
|---|---|---|---|
| 賃料/坪 | 相談 | 共益費/坪 | 相談 |
| 月額賃料 (共益費込) |
相談 | 入居日 | 2026年1月1日 |
| 敷金 (保証金) |
相談 | 礼金 | 無し |
| 償却費 | 無し | 更新料 | 無し |
| 契約 | 普通借家(2年) | ||
ビル概要
| 物件名 | JRE茅場町二丁目ビル(ジェーアールイーカヤバチョウ2チョウメビル) | ||
|---|---|---|---|
| 所在地 | 中央区日本橋茅場町2-13-13 | ||
| 利用可能駅 | |||
| 利用可能 路線 |
|||
| 竣工 | 1991年3月 | リニューアル | 2008年7月 |
| 構造 | 鉄骨鉄筋コンクリート(SRC造) | 規模 | B1階/9階 |
| 耐震構造 | 新耐震 | ||
個別空調
新耐震
光ファイバー利用可
24時間利用可
OAフロア有り
駐車場有り
アクセス
このビルの募集中フロア一覧
| 所在階 | 面積 | 入居予定 | 賃料 | 共益費 | 賃料総額 |
|---|---|---|---|---|---|
| 1階 | 60.23坪 | - | - | - | - |
| 2階 | 172.86坪 | - | - | - | - |
| 3階 | 167.35坪 | - | - | - | - |
| 4階 | 167.35坪 | - | - | - | - |
| 4階 | 75.75坪 | - | - | - | - |
| 4階 | 91.6坪 | - | - | - | - |
| 5階 | 167.35坪 | - | - | - | - |
| 7階 | 91.6坪 | 2026年1月1日 | 相談 | 相談 | - |

