- 東京の賃貸オフィス・貸事務所TOP
- 港区
- 浜松町・田町・三田・高輪・白金エリア
- ICON PLACE SHIBAKOEN(アイコンプレイスシバコウエン)
ICON PLACE SHIBAKOEN 7階 123.41坪 賃貸オフィス詳細
- 物件ID
- 58885
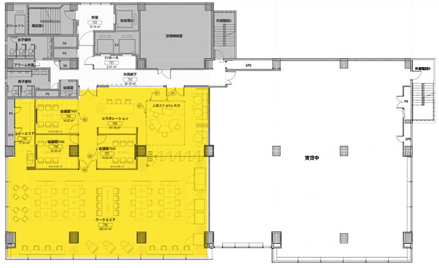
- ICON PLACE SHIBAKOEN(アイコンプレイスシバコウエン) 7階 123.41坪
-
”ICON PLACE SHIBAKOEN(アイコンプレイスシバコウエン)”は、 赤羽橋駅から徒歩4分、芝公園駅から徒歩5分、三田駅から徒歩9分 の賃貸オフィスです。
1990年8月に竣工。構造は鉄骨鉄筋コンクリート(SRC造)。耐震構造は新耐震。
利用可能路線は都営大江戸線、都営浅草線、都営三田線で、 用途は賃貸オフィスとなっています。最寄り駅は赤羽橋駅と芝公園駅と三田駅。 住所は港区芝3-2-18です。
ぜひ一度、内覧にお越しくださいませ。
フロア概要
| 階数 | 7階 | 面積 | 123.41坪(407.97m²) |
|---|---|---|---|
| 賃料/坪 | 相談 | 共益費/坪 | 賃料に含む |
| 月額賃料 (共益費込) |
相談 | 入居日 | 即 |
| 敷金 (保証金) |
6ヶ月 | 礼金 | 無し |
| 償却費 | 無し | 更新料 | 無し |
| 契約 | 普通借家(2年) | ||
ビル概要
| 物件名 | ICON PLACE SHIBAKOEN(アイコンプレイスシバコウエン) | ||
|---|---|---|---|
| 所在地 | 港区芝3-2-18 | ||
| 利用可能駅 | |||
| 利用可能 路線 |
|||
| 竣工 | 1990年8月 | リニューアル | 2025年1月 |
| 構造 | 鉄骨鉄筋コンクリート(SRC造) | 規模 | 1階/10階 |
| 耐震構造 | 新耐震 | ||
個別空調
新耐震
光ファイバー利用可
24時間利用可
OAフロア有り
要確認
アクセス
このビルの募集中フロア一覧
| 所在階 | 面積 | 入居予定 | 賃料 | 共益費 | 賃料総額 |
|---|---|---|---|---|---|
| 1階 | 120.81坪 | - | - | - | - |
| 2階 | 112.85坪 | - | - | - | - |
| 2階 | 234.99坪 | - | - | - | - |
| 2階 | 152.04坪 | - | - | - | - |
| 3階 | 234.99坪 | - | - | - | - |
| 5階 | 234.99坪 | - | - | - | - |
| 6階 | 234.99坪 | - | - | - | - |
| 7階 | 123.41坪 | 即 | 相談 | 賃料に含む | - |
| 7階 | 234.99坪 | - | - | - | - |
| 7階 | 109.78坪 | - | - | - | - |
| 8階 | 200.4坪 | - | - | - | - |
| 9階 | 113.24坪 | - | - | - | - |

