- 東京の賃貸オフィス・貸事務所TOP
- 渋谷区
- 渋谷・原宿・神宮前・東エリア
- 渋谷野村證券ビル(シブヤノムラショウケンビル)
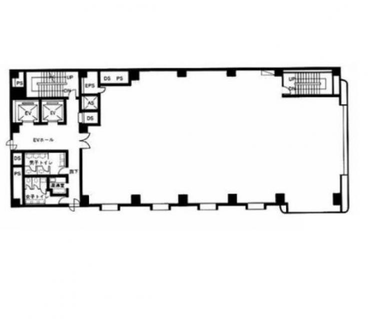
渋谷野村證券ビル 8階 114.2坪 賃貸オフィス詳細
- 物件ID
- 57993
- 渋谷野村證券ビル(シブヤノムラショウケンビル) 8階 114.2坪
-
”渋谷野村證券ビル(シブヤノムラショウケンビル)”は、 渋谷駅から徒歩3分 の賃貸オフィスです。
1981年11月に竣工。構造は鉄骨鉄筋コンクリート(SRC造)。耐震構造は旧耐震。
利用可能路線は山手線で、 用途は賃貸オフィスとなっています。最寄り駅は渋谷駅。 住所は渋谷区渋谷1-14-16です。
ぜひ一度、内覧にお越しくださいませ。
フロア概要
| 階数 | 8階 | 面積 | 114.2坪(377.51m²) |
|---|---|---|---|
| 賃料/坪 | 相談 | 共益費/坪 | 3,600円/坪 |
| 月額賃料 (共益費込) |
相談 | 入居日 | 即 |
| 敷金 (保証金) |
12ヶ月 | 礼金 | 無し |
| 償却費 | 無し | 更新料 | 無し |
| 契約 | 定期借家 | ||
ビル概要
| 物件名 | 渋谷野村證券ビル(シブヤノムラショウケンビル) | ||
|---|---|---|---|
| 所在地 | 渋谷区渋谷1-14-16 | ||
| 利用可能駅 |
|
||
| 利用可能 路線 |
|||
| 竣工 | 1981年11月 | リニューアル | - |
| 構造 | 鉄骨鉄筋コンクリート(SRC造) | 規模 | B1階/9階 |
| 耐震構造 | 旧耐震 新耐震基準に同等する物件 |
||
個別空調
旧耐震
光ファイバー利用可
24時間利用可
OAフロア有り
駐車場有り
アクセス
このビルの募集中フロア一覧
| 所在階 | 面積 | 入居予定 | 賃料 | 共益費 | 賃料総額 |
|---|---|---|---|---|---|
| 6階 | 113.42坪 | 即 | 相談 | 3,600円/坪 | - |
| 7階 | 111.62坪 | 即 | 相談 | 3,600円/坪 | - |
| 8階 | 114.2坪 | 即 | 相談 | 3,600円/坪 | - |
| 9階 | 35.54坪 | - | - | - | - |
| 9階 | 44.68坪 | - | - | - | - |
| 9階 | 37.56坪 | 即 | 相談 | 3,600円/坪 | 相談 |
もっと検索する
- 駅から検索
- エリアから検索

