- 東京の賃貸オフィス・貸事務所TOP
- 中央区
- 三越前・日本橋室町エリア
- CMビル(シーエムビル)
CMビル 6階 A号室 77.2坪 賃貸オフィス詳細
- 物件ID
- 57513
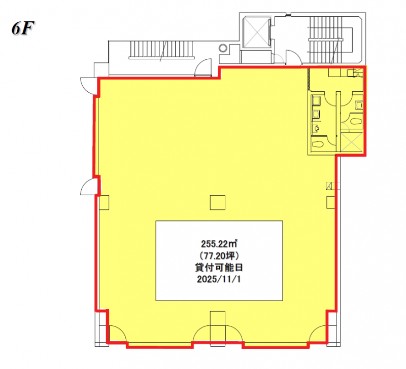
- CMビル(シーエムビル) 6階 77.2坪
-
”CMビル(シーエムビル)”は、 新日本橋駅から徒歩2分、神田駅から徒歩6分、小伝馬町駅から徒歩7分、日本橋駅から徒歩9分 の賃貸オフィスです。
1978年4月に竣工。構造は鉄筋コンクリート(RC造)。耐震構造は旧耐震(補強済み)。
利用可能路線は山手線、総武本線、銀座線、日比谷線で、 用途は賃貸オフィスとなっています。最寄り駅は新日本橋駅と神田駅と小伝馬町駅と日本橋駅。 住所は中央区日本橋室町3-3-3です。
ぜひ一度、内覧にお越しくださいませ。
フロア概要
| 階数 | 6階 A号室 | 面積 | 77.2坪(255.22m²) |
|---|---|---|---|
| 賃料/坪 | 相談 | 共益費/坪 | 無し |
| 月額賃料 (共益費込) |
相談 | 入居日 | 即 |
| 敷金 (保証金) |
相談 | 礼金 | 無し |
| 償却費 | 無し | 更新料 | 無し |
| 契約 | 定期借家(2年) | ||
ビル概要
| 物件名 | CMビル(シーエムビル) | ||
|---|---|---|---|
| 所在地 | 中央区日本橋室町3-3-3 | ||
| 利用可能駅 | |||
| 利用可能 路線 |
|||
| 竣工 | 1978年4月 | リニューアル | - |
| 構造 | 鉄筋コンクリート(RC造) | 規模 | B1階/9階 |
| 耐震構造 | 旧耐震(補強済み) | ||
個別空調
旧耐震(補強済み)
光ファイバー利用可
24時間利用可
OAフロア有り
駐車場有り
アクセス
このビルの募集中フロア一覧
| 所在階 | 面積 | 入居予定 | 賃料 | 共益費 | 賃料総額 |
|---|---|---|---|---|---|
| 6階 | 77.2坪 | 即 | 相談 | 無し | - |
| 7階 | 77.2坪 | - | - | - | - |

