- 東京の賃貸オフィス・貸事務所TOP
- 渋谷区
- 代々木・千駄ヶ谷・北参道エリア
- 新宿カメヤビル(シンジュクカメヤビル)
新宿カメヤビル 5階 43.23坪 賃貸オフィス詳細
- 物件ID
- 57229
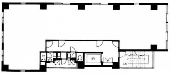
- 新宿カメヤビル(シンジュクカメヤビル) 5階 43.23坪
-
”新宿カメヤビル(シンジュクカメヤビル)”は、 南新宿駅から徒歩8分、初台駅から徒歩8分、都庁前駅から徒歩9分、参宮橋駅から徒歩9分、新宿駅から徒歩10分 の賃貸オフィスです。
1984年10月に竣工。構造は鉄骨鉄筋コンクリート(SRC造)。耐震構造は新耐震。
利用可能路線は小田急小田原線、京王京王線、都営大江戸線で、 用途は賃貸オフィスとなっています。最寄り駅は南新宿駅と初台駅と都庁前駅と参宮橋駅と新宿駅。 住所は渋谷区代々木3-26-2です。
ぜひ一度、内覧にお越しくださいませ。
フロア概要
| 階数 | 5階 | 面積 | 43.23坪(142.91m²) |
|---|---|---|---|
| 賃料/坪 | 13,000円/坪 | 共益費/坪 | 3,000円/坪 |
| 月額賃料 (共益費込) |
691,680円 | 入居日 | 即 |
| 敷金 (保証金) |
6ヶ月 | 礼金 | 無し |
| 償却費 | 1ヶ月 | 更新料 | 1ヶ月 |
| 契約 | 普通借家(2年) | ||
ビル概要
| 物件名 | 新宿カメヤビル(シンジュクカメヤビル) | ||
|---|---|---|---|
| 所在地 | 渋谷区代々木3-26-2 | ||
| 利用可能駅 | |||
| 利用可能 路線 |
|||
| 竣工 | 1984年10月 | リニューアル | - |
| 構造 | 鉄骨鉄筋コンクリート(SRC造) | 規模 | 1階/10階 |
| 耐震構造 | 新耐震 | ||
個別空調
新耐震
光ファイバー利用可
24時間利用可
OAフロア無し
駐車場無し
アクセス
このビルの募集中フロア一覧
| 所在階 | 面積 | 入居予定 | 賃料 | 共益費 | 賃料総額 |
|---|---|---|---|---|---|
| 2階 | 21.7坪 | - | - | - | - |
| 3階 | 43.23坪 | - | - | - | - |
| 4階 | 43.23坪 | - | - | - | - |
| 5階 | 43.23坪 | 即 | 13,000円/坪 | 3,000円/坪 | 561,990円/月 |
| 8階 | 43.23坪 | 即 | 13,000円/坪 | 3,000円/坪 | 561,990円/月 |
| 9階 | 43.23坪 | - | - | - | - |

