- 東京の賃貸オフィス・貸事務所TOP
- 港区
- 新橋・汐留エリア
- 明宏ビル本館(メイコウビルホンカン)
明宏ビル本館 5階 26.7坪 賃貸オフィス詳細
- 物件ID
- 57158
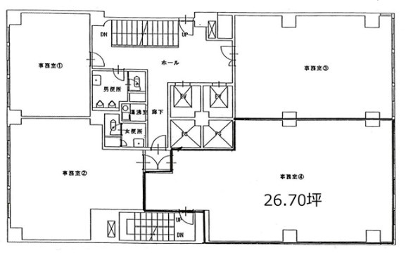
- 明宏ビル本館(メイコウビルホンカン) 5階 26.7坪
-
”明宏ビル本館(メイコウビルホンカン)”は、 内幸町駅から徒歩2分、新橋駅から徒歩5分、虎ノ門駅から徒歩8分、汐留駅から徒歩9分、霞ケ関駅から徒歩9分、日比谷駅から徒歩10分 の賃貸オフィスです。
1972年1月に竣工。構造は鉄骨鉄筋コンクリート(SRC造)。耐震構造は旧耐震。
利用可能路線は都営三田線、都営大江戸線、日比谷線、丸ノ内線、銀座線、東海道本線で、 用途は賃貸オフィスとなっています。最寄り駅は内幸町駅と新橋駅と虎ノ門駅と汐留駅と霞ケ関駅と日比谷駅。 住所は港区新橋1-18-2です。
ぜひ一度、内覧にお越しくださいませ。
フロア概要
| 階数 | 5階 | 面積 | 26.7坪(88.26m²) |
|---|---|---|---|
| 賃料/坪 | 17,000円/坪 | 共益費/坪 | 3,000円/坪 |
| 月額賃料 (共益費込) |
534,000円 | 入居日 | 相談 |
| 敷金 (保証金) |
10ヶ月 | 礼金 | 無し |
| 償却費 | 無し | 更新料 | 無し |
| 契約 | 定期借家(3年) | ||
ビル概要
| 物件名 | 明宏ビル本館(メイコウビルホンカン) | ||
|---|---|---|---|
| 所在地 | 港区新橋1-18-2 | ||
| 利用可能駅 | |||
| 利用可能 路線 |
|||
| 竣工 | 1972年1月 | リニューアル | - |
| 構造 | 鉄骨鉄筋コンクリート(SRC造) | 規模 | B2階/9階 |
| 耐震構造 | 旧耐震 | ||
個別空調
旧耐震
光ファイバー利用可
24時間利用可
OAフロア無し
駐車場無し
アクセス
このビルの募集中フロア一覧
| 所在階 | 面積 | 入居予定 | 賃料 | 共益費 | 賃料総額 |
|---|---|---|---|---|---|
| 2階 | 21坪 | - | - | - | - |
| 3階 | 10.8坪 | - | - | - | - |
| 3階 | 55坪 | - | - | - | - |
| 3階 | 21坪 | - | - | - | - |
| 4階 | 72.3坪 | - | - | - | - |
| 4階 | 10.81坪 | - | - | - | - |
| 4階 | 16.5坪 | - | - | - | - |
| 4階 | 26.7坪 | - | - | - | - |
| 5階 | 27.3坪 | - | - | - | - |
| 5階 | 26.7坪 | 相談 | 17,000円/坪 | 3,000円/坪 | 453,900円/月 |
| 5階 | 43.2坪 | - | - | - | - |
| 5階 | 13坪 | - | - | - | - |
| 6階 | 12.1坪 | - | - | - | - |
| 6階 | 34.42坪 | - | - | - | - |
| 6階 | 24.2坪 | - | - | - | - |
| 6階 | 27.3坪 | - | - | - | - |
| 7階 | 41.74坪 | - | - | - | - |
| 7階 | 50.21坪 | 相談 | 17,000円/坪 | 3,000円/坪 | 853,570円/月 |

