- 東京の賃貸オフィス・貸事務所TOP
- 千代田区
- 神田・秋葉原・岩本町エリア
- 亀松ビル(キショウビル)
亀松ビル 7階 89.11坪 賃貸オフィス詳細
- 物件ID
- 57148
- 亀松ビル(キショウビル) 7階 89.11坪
-
”亀松ビル(キショウビル)”は、 末広町駅から徒歩2分、秋葉原駅から徒歩5分、御徒町駅から徒歩9分、御茶ノ水駅から徒歩9分、上野広小路駅から徒歩9分、淡路町駅から徒歩10分、岩本町駅から徒歩10分、湯島駅から徒歩10分 の賃貸オフィスです。
2007年8月に竣工。構造は鉄骨鉄筋コンクリート(SRC造)。耐震構造は新耐震。
利用可能路線は丸ノ内線、銀座線、京成本線、総武本線、中央線(快速)、山手線、日比谷線、千代田線、都営大江戸線、都営新宿線で、 用途は賃貸オフィスとなっています。最寄り駅は末広町駅と秋葉原駅と御徒町駅と御茶ノ水駅と上野広小路駅と淡路町駅と岩本町駅と湯島駅。 住所は千代田区外神田4-5です。
ぜひ一度、内覧にお越しくださいませ。
フロア概要
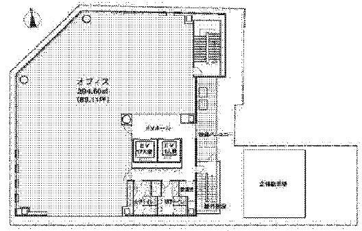
| 階数 | 7階 | 面積 | 89.11坪(294.58m²) |
|---|---|---|---|
| 賃料/坪 | 相談 | 共益費/坪 | 相談 |
| 月額賃料 (共益費込) |
相談 | 入居日 | 即 |
| 敷金 (保証金) |
12ヶ月 | 礼金 | 1ヶ月 |
| 償却費 | 無し | 更新料 | 1ヶ月 |
| 契約 | 普通借家(3年) | ||
ビル概要
| 物件名 | 亀松ビル(キショウビル) | ||
|---|---|---|---|
| 所在地 | 千代田区外神田4-5 | ||
| 利用可能駅 | |||
| 利用可能 路線 |
|||
| 竣工 | 2007年8月 | リニューアル | - |
| 構造 | 鉄骨鉄筋コンクリート(SRC造) | 規模 | B1階/12階 |
| 耐震構造 | 新耐震 | ||
空調有り
新耐震
光ファイバー利用可
24時間利用可
OAフロア有り
要確認
アクセス
このビルの募集中フロア一覧
| 所在階 | 面積 | 入居予定 | 賃料 | 共益費 | 賃料総額 |
|---|---|---|---|---|---|
| 4階 | 89.11坪 | - | - | - | - |
| 7階 | 89.11坪 | 即 | 相談 | 相談 | 相談 |

