- 東京の賃貸オフィス・貸事務所TOP
- 新宿区
- 新宿・御苑・歌舞伎町エリア
- 新宿Qフラットビル(シンジュクキュウフラットビル)
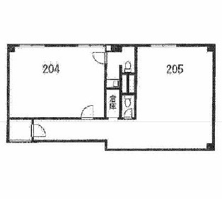
新宿Qフラットビル 2階 204・205 21.02坪 賃貸オフィス詳細
- 物件ID
- 57132
- 新宿Qフラットビル(シンジュクキュウフラットビル) 2階 21.02坪
-
”新宿Qフラットビル(シンジュクキュウフラットビル)”は、 新宿御苑前駅から徒歩5分、新宿三丁目駅から徒歩7分 の賃貸オフィスです。
1973年10月に竣工。構造は鉄骨鉄筋コンクリート(SRC造)。耐震構造は旧耐震。
利用可能路線は丸ノ内線で、 用途は賃貸オフィスとなっています。最寄り駅は新宿御苑前駅と新宿三丁目駅。 住所は新宿区新宿5-4-1です。
ぜひ一度、内覧にお越しくださいませ。
フロア概要
| 階数 | 2階 204・205 | 面積 | 21.02坪(67.47m²) |
|---|---|---|---|
| 賃料/坪 | 14,748円/坪 | 共益費/坪 | 賃料に含む |
| 月額賃料 (共益費込) |
310,000円 | 入居日 | 即 |
| 敷金 (保証金) |
4ヶ月 | 礼金 | 1ヶ月 |
| 償却費 | 無し | 更新料 | 無し |
| 契約 | 定期借家(3年) | ||
ビル概要
| 物件名 | 新宿Qフラットビル(シンジュクキュウフラットビル) | ||
|---|---|---|---|
| 所在地 | 新宿区新宿5-4-1 | ||
| 利用可能駅 | |||
| 利用可能 路線 |
|||
| 竣工 | 1973年10月 | リニューアル | - |
| 構造 | 鉄骨鉄筋コンクリート(SRC造) | 規模 | B1階/10階 |
| 耐震構造 | 旧耐震 | ||
個別空調
旧耐震
光ファイバー利用可
24時間利用可
OAフロア無し
駐車場無し
アクセス
このビルの募集中フロア一覧
| 所在階 | 面積 | 入居予定 | 賃料 | 共益費 | 賃料総額 |
|---|---|---|---|---|---|
| 2階 | 11.29坪 | - | - | - | - |
| 2階 | 23.85坪 | - | - | - | - |
| 2階 | 51.31坪 | - | - | - | - |
| 2階 | 23.85坪 | - | - | - | - |
| 2階 | 23.85坪 | - | - | - | - |
| 2階 | 22.15坪 | - | - | - | - |
| 2階 | 21.02坪 | - | - | - | - |
| 2階 | 11.29坪 | - | - | - | - |
| 2階 | 21.02坪 | 即 | 14,748円/坪 | 賃料に含む | 310,000円/月 |
| 2階 | 11.13坪 | - | - | - | - |
| 2階 | 20.41坪 | - | - | - | - |
| 3階 | 13.62坪 | - | - | - | - |
| 3階 | 11.13坪 | - | - | - | - |
| 3階 | 10.36坪 | - | - | - | - |
| 3階 | 10.36坪 | - | - | - | - |
| 3階 | 13.63坪 | - | - | - | - |
| 6階 | 14.22坪 | 相談 | 9,142円/坪 | 703円/坪 | 130,000円/月 |
| 8階 | 13.63坪 | - | - | - | - |
| 8階 | 12.36坪 | - | - | - | - |
| 8階 | 10.36坪 | - | - | - | - |
| 8階 | 13.63坪 | - | - | - | - |
| 9階 | 13.63坪 | - | - | - | - |
| 9階 | 14.22坪 | - | - | - | - |
| 10階 | 113.39坪 | - | - | - | - |
| 10階 | 84.62坪 | - | - | - | - |
| 10階 | 25坪 | - | - | - | - |
もっと検索する
- 駅から検索
- エリアから検索

