- 東京の賃貸オフィス・貸事務所TOP
- 新宿区
- 西新宿エリア
- 西新宿小出ビル(ニシシンジュクコイデビル)
西新宿小出ビル 6階 28.5坪 賃貸オフィス詳細
- 物件ID
- 57105
- 西新宿小出ビル(ニシシンジュクコイデビル) 6階 28.5坪
-
”西新宿小出ビル(ニシシンジュクコイデビル)”は、 都庁前駅から徒歩6分、南新宿駅から徒歩7分、新宿駅から徒歩8分、代々木駅から徒歩10分、新宿西口駅から徒歩10分 の賃貸オフィスです。
1989年8月 下旬に竣工。構造は鉄骨鉄筋コンクリート(SRC造)。耐震構造は新耐震。
利用可能路線は山手線、小田急小田原線、都営大江戸線で、 用途は賃貸オフィスとなっています。最寄り駅は都庁前駅と南新宿駅と新宿駅と代々木駅と新宿西口駅。 住所は新宿区西新宿3-1-3です。
ぜひ一度、内覧にお越しくださいませ。
フロア概要
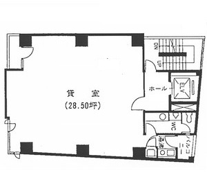
| 階数 | 6階 | 面積 | 28.5坪(94.22m²) |
|---|---|---|---|
| 賃料/坪 | 相談 | 共益費/坪 | 3,500円/坪 |
| 月額賃料 (共益費込) |
相談 | 入居日 | 即 |
| 敷金 (保証金) |
12ヶ月 | 礼金 | 無し |
| 償却費 | 2ヶ月 | 更新料 | 1ヶ月 |
| 契約 | 普通借家(2年) | ||
ビル概要
| 物件名 | 西新宿小出ビル(ニシシンジュクコイデビル) | ||
|---|---|---|---|
| 所在地 | 新宿区西新宿3-1-3 | ||
| 利用可能駅 | |||
| 利用可能 路線 |
|||
| 竣工 | 1989年8月 下旬 | リニューアル | - |
| 構造 | 鉄骨鉄筋コンクリート(SRC造) | 規模 | B1階/11階 |
| 耐震構造 | 新耐震 | ||
空調有り
新耐震
要確認
要確認
要確認
駐車場無し
アクセス
このビルの募集中フロア一覧
| 所在階 | 面積 | 入居予定 | 賃料 | 共益費 | 賃料総額 |
|---|---|---|---|---|---|
| B1階 | 24.19坪 | - | - | - | - |
| 2階 | 28.29坪 | - | - | - | - |
| 6階 | 28.5坪 | 即 | 相談 | 3,500円/坪 | - |
| 7階 | 28.5坪 | - | - | - | - |
| 8階 | 28.5坪 | - | - | - | - |
| 9階 | 28.5坪 | - | - | - | - |
| 10階 | 28.5坪 | - | - | - | - |
| 11階 | 26.78坪 | - | - | - | - |
もっと検索する
- 駅から検索
- エリアから検索

