- 東京の賃貸オフィス・貸事務所TOP
- 港区
- 新橋・汐留エリア
- 汐留ファースト(シオドメファースト)
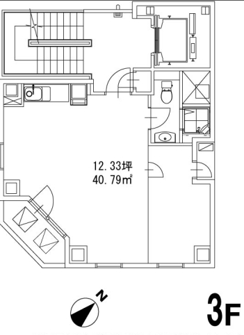
汐留ファースト 3階 301号室 12.33坪 賃貸オフィス詳細
- 物件ID
- 57039
- 汐留ファースト(シオドメファースト) 3階 12.33坪
-
”汐留ファースト(シオドメファースト)”は、 汐留駅から徒歩6分、大門駅から徒歩7分、御成門駅から徒歩7分、新橋駅から徒歩8分、浜松町駅から徒歩9分 の賃貸オフィスです。
2003年7月に竣工。構造は鉄骨造(S造)。耐震構造は新耐震。
利用可能路線は丸ノ内線、銀座線、山手線、東海道本線、日比谷線、千代田線、有楽町線、都営大江戸線、都営浅草線、都営三田線、ゆりかもめで、 用途は賃貸オフィスとなっています。最寄り駅は汐留駅と大門駅と御成門駅と新橋駅と浜松町駅。 住所は港区東新橋2-9-6です。
ぜひ一度、内覧にお越しくださいませ。
フロア概要
| 階数 | 3階 301号室 | 面積 | 12.33坪(40.76m²) |
|---|---|---|---|
| 賃料/坪 | - | 共益費/坪 | - |
| 月額賃料 (共益費込) |
- | 入居日 | - |
| 敷金 (保証金) |
- | 礼金 | - |
| 償却費 | - | 更新料 | - |
| 契約 | - | ||
ビル概要
| 物件名 | 汐留ファースト(シオドメファースト) | ||
|---|---|---|---|
| 所在地 | 港区東新橋2-9-6 | ||
| 利用可能駅 | |||
| 利用可能 路線 |
|||
| 竣工 | 2003年7月 | リニューアル | - |
| 構造 | 鉄骨造(S造) | 規模 | 1階/9階 |
| 耐震構造 | 新耐震 | ||
個別空調
新耐震
光ファイバー利用可
24時間利用可
OAフロア有り
駐車場無し
アクセス
このビルの募集中フロア一覧
| 所在階 | 面積 | 入居予定 | 賃料 | 共益費 | 賃料総額 |
|---|---|---|---|---|---|
| 3階 | 12.33坪 | - | - | - | - |
| 6階 | 12.33坪 | - | - | - | - |
| 7階 | 12.33坪 | - | - | - | - |
| 8階 | 12.33坪 | 即 | 相談 | 無し | - |
| 9階 | 12.33坪 | - | - | - | - |
もっと検索する
- 駅から検索
- エリアから検索

