- 東京の賃貸オフィス・貸事務所TOP
- 千代田区
- 九段下・神保町・竹橋エリア
- 神保町TKビル(ジンボウチョウティーケイビル)
神保町TKビル 4階 16.91坪 賃貸オフィス詳細
- 物件ID
- 56976
- 神保町TKビル(ジンボウチョウティーケイビル) 4階 16.91坪
-
”神保町TKビル(ジンボウチョウティーケイビル)”は、 神保町駅から徒歩2分、竹橋駅から徒歩7分、九段下駅から徒歩8分、御茶ノ水駅から徒歩10分 の賃貸オフィスです。
2011年1月に竣工。構造は鉄筋コンクリート(RC造)。耐震構造は新耐震。
利用可能路線は中央線(快速)、東西線、半蔵門線で、 用途は賃貸オフィスとなっています。最寄り駅は神保町駅と竹橋駅と九段下駅と御茶ノ水駅。 住所は千代田区神田神保町1-13-16です。
ぜひ一度、内覧にお越しくださいませ。
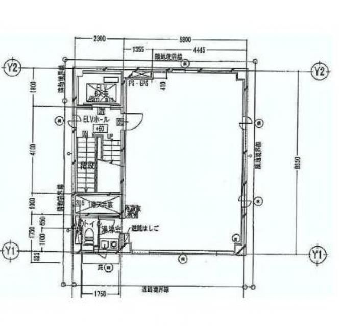
フロア概要
| 階数 | 4階 | 面積 | 16.91坪(55.9m²) |
|---|---|---|---|
| 賃料/坪 | 16,500円/坪 | 共益費/坪 | 賃料に含む |
| 月額賃料 (共益費込) |
279,015円 | 入居日 | 即 |
| 敷金 (保証金) |
8ヶ月 | 礼金 | 無し |
| 償却費 | 無し | 更新料 | 1ヶ月 |
| 契約 | 普通借家(2年) | ||
ビル概要
| 物件名 | 神保町TKビル(ジンボウチョウティーケイビル) | ||
|---|---|---|---|
| 所在地 | 千代田区神田神保町1-13-16 | ||
| 利用可能駅 | |||
| 利用可能 路線 |
|||
| 竣工 | 2011年1月 | リニューアル | - |
| 構造 | 鉄筋コンクリート(RC造) | 規模 | 1階/4階 |
| 耐震構造 | 新耐震 | ||
個別空調
新耐震
光ファイバー利用可
24時間利用可
OAフロア有り
駐車場無し
アクセス
このビルの募集中フロア一覧
| 所在階 | 面積 | 入居予定 | 賃料 | 共益費 | 賃料総額 |
|---|---|---|---|---|---|
| 2階 | 16.91坪 | - | - | - | - |
| 4階 | 16.91坪 | 即 | 16,500円/坪 | 賃料に含む | 279,015円/月 |

