- 東京の賃貸オフィス・貸事務所TOP
- 千代田区
- 大手町・丸の内エリア
- 東京サンケイビル(トウキョウサンケイビル)
東京サンケイビル 22階 536.31坪 賃貸オフィス詳細
- 物件ID
- 56347
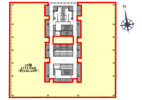
- 東京サンケイビル(トウキョウサンケイビル) 22階 536.31坪
-
”東京サンケイビル(トウキョウサンケイビル)”は、 大手町駅から徒歩2分、東京駅から徒歩8分、神田駅から徒歩9分、二重橋前駅から徒歩10分 の賃貸オフィスです。
2000年10月に竣工。構造は鉄骨鉄筋コンクリート(SRC造)。耐震構造は新耐震。
利用可能路線は千代田線、丸ノ内線、山手線、東海道本線で、 用途は賃貸オフィスとなっています。最寄り駅は大手町駅と東京駅と神田駅と二重橋前駅。 住所は千代田区大手町1-7-2です。
ぜひ一度、内覧にお越しくださいませ。
フロア概要
| 階数 | 22階 | 面積 | 536.31坪(1772.93m²) |
|---|---|---|---|
| 賃料/坪 | 相談 | 共益費/坪 | 相談 |
| 月額賃料 (共益費込) |
相談 | 入居日 | 2026年8月2日 |
| 敷金 (保証金) |
相談 | 礼金 | 無し |
| 償却費 | 無し | 更新料 | 無し |
| 契約 | 定期借家(4年) | ||
ビル概要
| 物件名 | 東京サンケイビル(トウキョウサンケイビル) | ||
|---|---|---|---|
| 所在地 | 千代田区大手町1-7-2 | ||
| 利用可能駅 | |||
| 利用可能 路線 |
|||
| 竣工 | 2000年10月 | リニューアル | - |
| 構造 | 鉄骨鉄筋コンクリート(SRC造) | 規模 | B4階/31階 |
| 耐震構造 | 新耐震 | ||
個別空調
新耐震
光ファイバー利用可
24時間利用可
OAフロア有り
駐車場有り
アクセス
このビルの募集中フロア一覧
| 所在階 | 面積 | 入居予定 | 賃料 | 共益費 | 賃料総額 |
|---|---|---|---|---|---|
| 15階 | 139.31坪 | - | - | - | - |
| 15階 | 65.78坪 | - | - | - | - |
| 15階 | 55.83坪 | - | - | - | - |
| 15階 | 65.78坪 | - | - | - | - |
| 16階 | 187.37坪 | - | - | - | - |
| 16階 | 260.93坪 | - | - | - | - |
| 17階 | 260.93坪 | - | - | - | - |
| 17階 | 139.31坪 | 2026年10月1日 | 相談 | 相談 | - |
| 17階 | 121.61坪 | - | - | - | - |
| 18階 | 77.35坪 | - | - | - | - |
| 18階 | 139.31坪 | - | - | - | - |
| 18階 | 121.61坪 | - | - | - | - |
| 18階 | 525.68坪 | - | - | - | - |
| 19階 | 525.68坪 | - | - | - | - |
| 20階 | 525.68坪 | - | - | - | - |
| 21階 | 525.68坪 | - | - | - | - |
| 22階 | 536.31坪 | 2026年8月2日 | 相談 | 相談 | - |
| 23階 | 536.31坪 | 2026年8月2日 | 相談 | 相談 | - |
| 23階 | 271.54坪 | - | - | - | - |
| 24階 | 263.65坪 | - | - | - | - |
| 24階 | 262.02坪 | - | - | - | - |
| 25階 | 264.75坪 | - | - | - | - |
| 25階 | 139.31坪 | - | - | - | - |
| 26階 | 205.1坪 | - | - | - | - |
| 26階 | 260.93坪 | - | - | - | - |
| 26階 | 525.68坪 | - | - | - | - |
| 26階 | 55.83坪 | - | - | - | - |
| 27階 | 22.28坪 | - | - | - | - |
| 27階 | 77.34坪 | - | - | - | - |
| 27階 | 65.78坪 | - | - | - | - |
| 28階 | 547.97坪 | - | - | - | - |

