- 東京の賃貸オフィス・貸事務所TOP
- 中央区
- 銀座エリア
- SRビル(エスアールビル)
SRビル 4階 19.16坪 賃貸オフィス詳細
- 物件ID
- 5543
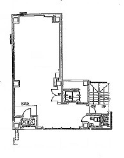
- SRビル(エスアールビル) 4階 19.16坪
-
”SRビル(エスアールビル)”は、 新橋駅から徒歩6分、東銀座駅から徒歩6分、築地市場駅から徒歩6分、汐留駅から徒歩6分、銀座駅から徒歩7分 の賃貸オフィスです。
2009年4月に竣工。構造は鉄骨造(S造)。耐震構造は新耐震。
利用可能路線は東海道本線、銀座線、日比谷線、都営大江戸線で、 用途は賃貸オフィスとなっています。最寄り駅は新橋駅と東銀座駅と築地市場駅と汐留駅と銀座駅。 住所は中央区銀座8-12-3です。
ぜひ一度、内覧にお越しくださいませ。
フロア概要
| 階数 | 4階 | 面積 | 19.16坪(63.34m²) |
|---|---|---|---|
| 賃料/坪 | 18,000円/坪 | 共益費/坪 | 4,000円/坪 |
| 月額賃料 (共益費込) |
421,520円 | 入居日 | 即 |
| 敷金 (保証金) |
10ヶ月 | 礼金 | 無し |
| 償却費 | 10% | 更新料 | 1ヶ月 |
| 契約 | 定期借家(2年) | ||
| 備考 | 看板使用料:5,000円/月(税別) |
||
ビル概要
| 物件名 | SRビル(エスアールビル) | ||
|---|---|---|---|
| 所在地 | 中央区銀座8-12-3 | ||
| 利用可能駅 | |||
| 利用可能 路線 |
|||
| 竣工 | 2009年4月 | リニューアル | - |
| 構造 | 鉄骨造(S造) | 規模 | B1階/8階 |
| 耐震構造 | 新耐震 | ||
個別空調
新耐震
光ファイバー利用可
24時間利用可
OAフロア無し
駐車場有り
アクセス
このビルの募集中フロア一覧
| 所在階 | 面積 | 入居予定 | 賃料 | 共益費 | 賃料総額 |
|---|---|---|---|---|---|
| 2階 | 19.16坪 | - | - | - | - |
| 3階 | 19.16坪 | - | - | - | - |
| 4階 | 19.16坪 | 即 | 18,000円/坪 | 4,000円/坪 | 344,880円/月 |
| 5階 | 19.16坪 | - | - | - | - |
| 6階 | 19.16坪 | - | - | - | - |
| 7階 | 19.16坪 | - | - | - | - |
| 8階 | 19.16坪 | 即 | 20,000円/坪 | 4,000円/坪 | 383,200円/月 |
もっと検索する
- 駅から検索
- エリアから検索

