- 東京の賃貸オフィス・貸事務所TOP
- 千代田区
- 神田・秋葉原・岩本町エリア
- 神田MCビルディング(カンダエムシービルディング)
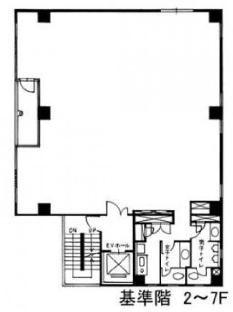
神田MCビルディング 4階 53.81坪 賃貸オフィス詳細
- 物件ID
- 54402
- 神田MCビルディング(カンダエムシービルディング) 4階 53.81坪
-
”神田MCビルディング(カンダエムシービルディング)”は、 岩本町駅から徒歩4分、小伝馬町駅から徒歩5分、馬喰町駅から徒歩5分、浅草橋駅から徒歩8分、秋葉原駅から徒歩9分、新日本橋駅から徒歩10分、神田駅から徒歩10分 の賃貸オフィスです。
1992年11月に竣工。構造は鉄骨鉄筋コンクリート(SRC造)。耐震構造は新耐震。
利用可能路線は日比谷線、銀座線、総武本線、中央・総武線、山手線、半蔵門線、都営大江戸線、都営新宿線で、 用途は賃貸オフィスとなっています。最寄り駅は岩本町駅と小伝馬町駅と馬喰町駅と浅草橋駅と秋葉原駅と新日本橋駅と神田駅。 住所は千代田区岩本町2-16-2です。
ぜひ一度、内覧にお越しくださいませ。
フロア概要
| 階数 | 4階 | 面積 | 53.81坪(177.89m²) |
|---|---|---|---|
| 賃料/坪 | 相談 | 共益費/坪 | 賃料に含む |
| 月額賃料 (共益費込) |
相談 | 入居日 | 即 |
| 敷金 (保証金) |
10ヶ月 | 礼金 | 無し |
| 償却費 | 無し | 更新料 | 無し |
| 契約 | 普通借家(2年) | ||
ビル概要
| 物件名 | 神田MCビルディング(カンダエムシービルディング) | ||
|---|---|---|---|
| 所在地 | 千代田区岩本町2-16-2 | ||
| 利用可能駅 | |||
| 利用可能 路線 |
|||
| 竣工 | 1992年11月 | リニューアル | - |
| 構造 | 鉄骨鉄筋コンクリート(SRC造) | 規模 | 1階/7階 |
| 耐震構造 | 新耐震 | ||
個別空調
新耐震
光ファイバー利用可
24時間利用可
OAフロア有り
駐車場無し
アクセス
このビルの募集中フロア一覧
| 所在階 | 面積 | 入居予定 | 賃料 | 共益費 | 賃料総額 |
|---|---|---|---|---|---|
| 1階 | 43坪 | - | - | - | - |
| 3階 | 58.01坪 | - | - | - | - |
| 4階 | 53.81坪 | 即 | 相談 | 賃料に含む | - |
| 5階 | 58.01坪 | - | - | - | - |
| 6階 | 53.81坪 | - | - | - | - |
| 7階 | 53.81坪 | - | - | - | - |

