- 東京の賃貸オフィス・貸事務所TOP
- 千代田区
- 麹町・半蔵門・永田町エリア
- 山王グランドビル(サンノウグランドビル)
山王グランドビル 3階 81.04坪 賃貸オフィス詳細
- 物件ID
- 53363
- 山王グランドビル(サンノウグランドビル) 3階 81.04坪
-
”山王グランドビル(サンノウグランドビル)”は、 赤坂見附駅から徒歩2分、永田町駅から徒歩4分、赤坂駅から徒歩5分、溜池山王駅から徒歩6分、国会議事堂前駅から徒歩9分 の賃貸オフィスです。
1966年9月に竣工。構造は鉄骨鉄筋コンクリート(SRC造)。耐震構造は旧耐震(補強済み)。
利用可能路線は南北線、半蔵門線、有楽町線、千代田線、都営大江戸線、丸ノ内線、銀座線、中央線(快速)で、 用途は賃貸オフィスとなっています。最寄り駅は赤坂見附駅と永田町駅と赤坂駅と溜池山王駅と国会議事堂前駅。 住所は千代田区永田町2-14-2です。
ぜひ一度、内覧にお越しくださいませ。
フロア概要
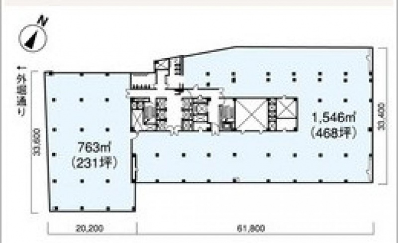
| 階数 | 3階 | 面積 | 81.04坪(267.9m²) |
|---|---|---|---|
| 賃料/坪 | 相談 | 共益費/坪 | 相談 |
| 月額賃料 (共益費込) |
相談 | 入居日 | 即 |
| 敷金 (保証金) |
相談 | 礼金 | 無し |
| 償却費 | 無し | 更新料 | 無し |
| 契約 | 定期借家(2年) | ||
ビル概要
| 物件名 | 山王グランドビル(サンノウグランドビル) | ||
|---|---|---|---|
| 所在地 | 千代田区永田町2-14-2 | ||
| 利用可能駅 | |||
| 利用可能 路線 |
|||
| 竣工 | 1966年9月 | リニューアル | - |
| 構造 | 鉄骨鉄筋コンクリート(SRC造) | 規模 | B2階/9階 |
| 耐震構造 | 旧耐震(補強済み) | ||
セントラル空調
旧耐震(補強済み)
光ファイバー利用可
24時間利用可
OAフロア有り
駐車場有り
アクセス
このビルの募集中フロア一覧
| 所在階 | 面積 | 入居予定 | 賃料 | 共益費 | 賃料総額 |
|---|---|---|---|---|---|
| B1階 | 17.66坪 | - | - | - | - |
| B1階 | 36.23坪 | - | - | - | - |
| B1階 | 17.72坪 | - | - | - | - |
| B1階 | 20.28坪 | - | - | - | - |
| B1階 | 21.76坪 | - | - | - | - |
| B1階 | 46.19坪 | 即 | 相談 | 相談 | - |
| B1階 | 54.61坪 | - | - | - | - |
| B1階 | 13.2坪 | - | - | - | - |
| B1階 | 190.76坪 | 即 | 相談 | 相談 | - |
| B1階 | 27.31坪 | - | - | - | - |
| B1階 | 67.75坪 | 2026年4月1日 | 相談 | 相談 | - |
| 1階 | 31.78坪 | - | - | - | - |
| 1階 | 49.2坪 | 相談 | 相談 | 相談 | - |
| 1階 | 31.04坪 | - | - | - | - |
| 1階 | 46.77坪 | 相談 | 相談 | 相談 | - |
| 1階 | 49.2坪 | - | - | - | - |
| 2階 | 33.94坪 | - | - | - | - |
| 2階 | 40.91坪 | - | - | - | - |
| 2階 | 46.28坪 | 即 | 相談 | 相談 | - |
| 2階 | 33.94坪 | - | - | - | - |
| 2階 | 80.22坪 | - | - | - | - |
| 2階 | 154.63坪 | 即 | 相談 | 賃料に含む | - |
| 3階 | 246.17坪 | - | - | - | - |
| 3階 | 28.86坪 | - | - | - | - |
| 3階 | 75.17坪 | - | - | - | - |
| 3階 | 439.22坪 | - | - | - | - |
| 3階 | 81.04坪 | 即 | 相談 | 相談 | - |
| 3階 | 21.16坪 | - | - | - | - |
| 3階 | 92.05坪 | - | - | - | - |
| 3階 | 88.89坪 | - | - | - | - |
| 4階 | 42.88坪 | - | - | - | - |
| 4階 | 94.02坪 | - | - | - | - |
| 4階 | 21.26坪 | - | - | - | - |
| 4階 | 117.55坪 | - | - | - | - |
| 4階 | 41.68坪 | - | - | - | - |
| 4階 | 44.11坪 | - | - | - | - |
| 4階 | 28坪 | - | - | - | - |
| 4階 | 122坪 | - | - | - | - |
| 4階 | 52.35坪 | - | - | - | - |
| 4階 | 83.58坪 | - | - | - | - |
| 4階 | 21.16坪 | - | - | - | - |
| 4階 | 52.35坪 | - | - | - | - |
| 4階 | 22.07坪 | - | - | - | - |
| 5階 | 93.49坪 | 即 | 相談 | 相談 | - |
| 5階 | 134.78坪 | 即 | 相談 | 相談 | - |
| 5階 | 138.92坪 | - | - | - | - |
| 5階 | 56.13坪 | - | - | - | - |
| 5階 | 40.26坪 | 即 | 相談 | 相談 | - |
| 5階 | 42坪 | - | - | - | - |
| 5階 | 99.58坪 | - | - | - | - |
| 5階 | 42.53坪 | 即 | 相談 | 相談 | - |
| 5階 | 41.42坪 | - | - | - | - |
| 5階 | 37.41坪 | - | - | - | - |
| 5階 | 128.55坪 | - | - | - | - |
| 5階 | 28.97坪 | - | - | - | - |
| 6階 | 663.63坪 | - | - | - | - |
| 6階 | 49.9坪 | - | - | - | - |
| 6階 | 95.21坪 | - | - | - | - |
| 6階 | 205.47坪 | - | - | - | - |
| 6階 | 185.98坪 | - | - | - | - |
| 6階 | 663.63坪 | - | - | - | - |
| 6階 | 307.7坪 | - | - | - | - |
| 6階 | 42.23坪 | - | - | - | - |
| 6階 | 52.99坪 | - | - | - | - |
| 7階 | 87.72坪 | - | - | - | - |
| 7階 | 36.24坪 | - | - | - | - |
| 8階 | 235.85坪 | - | - | - | - |
| 8階 | 166.16坪 | - | - | - | - |
| 8階 | 165.16坪 | - | - | - | - |
| 9階 | 669.62坪 | - | - | - | - |
| 9階 | 279.04坪 | 2026年4月1日 | 相談 | 相談 | - |

