- 東京の賃貸オフィス・貸事務所TOP
- 千代田区
- 大手町・丸の内エリア
- 明治生命館(メイジセイメイカン)
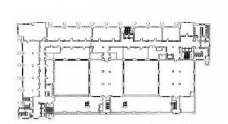
明治生命館 6階 35.58坪 賃貸オフィス詳細
- 物件ID
- 53084
- 明治生命館(メイジセイメイカン) 6階 35.58坪
-
”明治生命館(メイジセイメイカン)”は、 二重橋前駅から徒歩4分、有楽町駅から徒歩6分、日比谷駅から徒歩7分、東京駅から徒歩7分、銀座一丁目駅から徒歩9分、銀座駅から徒歩10分 の賃貸オフィスです。
1934年3月に竣工。構造は鉄骨鉄筋コンクリート(SRC造)。耐震構造は新耐震。
利用可能路線は千代田線、日比谷線、銀座線、山手線、東海道本線、有楽町線で、 用途は賃貸オフィスとなっています。最寄り駅は二重橋前駅と有楽町駅と日比谷駅と東京駅と銀座一丁目駅と銀座駅。 住所は千代田区丸の内2-1-1です。
ぜひ一度、内覧にお越しくださいませ。
フロア概要
| 階数 | 6階 | 面積 | 35.58坪(117.62m²) |
|---|---|---|---|
| 賃料/坪 | 相談 | 共益費/坪 | 相談 |
| 月額賃料 (共益費込) |
相談 | 入居日 | 即 |
| 敷金 (保証金) |
相談 | 礼金 | 無し |
| 償却費 | 無し | 更新料 | 無し |
| 契約 | 普通借家(2年) | ||
ビル概要
| 物件名 | 明治生命館(メイジセイメイカン) | ||
|---|---|---|---|
| 所在地 | 千代田区丸の内2-1-1 | ||
| 利用可能駅 | |||
| 利用可能 路線 |
|||
| 竣工 | 1934年3月 | リニューアル | 2009年9月 |
| 構造 | 鉄骨鉄筋コンクリート(SRC造) | 規模 | B2階/8階 |
| 耐震構造 | 新耐震 | ||
セントラル空調
新耐震
光ファイバー利用可
24時間利用可
OAフロア有り
駐車場有り
アクセス
このビルの募集中フロア一覧
| 所在階 | 面積 | 入居予定 | 賃料 | 共益費 | 賃料総額 |
|---|---|---|---|---|---|
| 3階 | 13.29坪 | - | - | - | - |
| 4階 | 27.13坪 | 即 | 相談 | 相談 | - |
| 4階 | 75.62坪 | - | - | - | - |
| 4階 | 12.59坪 | - | - | - | - |
| 4階 | 17.04坪 | - | - | - | - |
| 4階 | 23.74坪 | - | - | - | - |
| 5階 | 28.15坪 | - | - | - | - |
| 5階 | 79.77坪 | - | - | - | - |
| 5階 | 85.88坪 | - | - | - | - |
| 6階 | 56坪 | 即 | 相談 | 相談 | - |
| 6階 | 80.42坪 | - | - | - | - |
| 6階 | 35.58坪 | 即 | 相談 | 相談 | - |
| 7階 | 88.03坪 | - | - | - | - |
| 8階 | 81坪 | - | - | - | - |
| 8階 | 88.25坪 | - | - | - | - |
| 8階 | 18.89坪 | 即 | 相談 | 相談 | - |
| 8階 | 34.05坪 | - | - | - | - |
| 8階 | 28.87坪 | - | - | - | - |
| 8階 | 51.13坪 | - | - | - | - |
| 8階 | 35.08坪 | - | - | - | - |
| 8階 | 38.78坪 | - | - | - | - |
| 8階 | 89.55坪 | - | - | - | - |

