- 東京の賃貸オフィス・貸事務所TOP
- 港区
- 浜松町・田町・三田・高輪・白金エリア
- アクシオール三田(アクシオールミタ)
アクシオール三田 9階 71.62坪 賃貸オフィス詳細
- 物件ID
- 52131
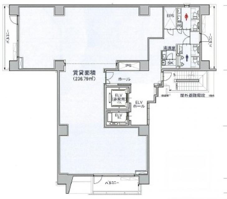
- アクシオール三田(アクシオールミタ) 9階 71.62坪
-
”アクシオール三田(アクシオールミタ)”は、 田町駅から徒歩5分、三田駅から徒歩6分 の賃貸オフィスです。
2011年10月に竣工。構造は鉄筋コンクリート(RC造)。耐震構造は新耐震。
利用可能路線は山手線、都営浅草線で、 用途は賃貸オフィスとなっています。最寄り駅は田町駅と三田駅。 住所は港区三田3-1-17です。
ぜひ一度、内覧にお越しくださいませ。
フロア概要
| 階数 | 9階 | 面積 | 71.62坪(236.76m²) |
|---|---|---|---|
| 賃料/坪 | 17,000円/坪 | 共益費/坪 | 無し |
| 月額賃料 (共益費込) |
1,217,540円 | 入居日 | 相談 |
| 敷金 (保証金) |
8ヶ月 | 礼金 | 無し |
| 償却費 | 無し | 更新料 | 無し |
| 契約 | 普通借家(2年) | ||
ビル概要
| 物件名 | アクシオール三田(アクシオールミタ) | ||
|---|---|---|---|
| 所在地 | 港区三田3-1-17 | ||
| 利用可能駅 | |||
| 利用可能 路線 |
|||
| 竣工 | 2011年10月 | リニューアル | - |
| 構造 | 鉄筋コンクリート(RC造) | 規模 | B1階/14階 |
| 耐震構造 | 新耐震 | ||
個別空調
新耐震
光ファイバー利用可
24時間利用可
OAフロア有り
駐車場有り
アクセス
このビルの募集中フロア一覧
| 所在階 | 面積 | 入居予定 | 賃料 | 共益費 | 賃料総額 |
|---|---|---|---|---|---|
| 2階 | 71.62坪 | - | - | - | - |
| 3階 | 71.62坪 | - | - | - | - |
| 3階 | 37.14坪 | - | - | - | - |
| 3階 | 35.037坪 | - | - | - | - |
| 4階 | 37.14坪 | - | - | - | - |
| 4階 | 34.77坪 | - | - | - | - |
| 4階 | 71.62坪 | - | - | - | - |
| 5階 | 71.62坪 | 相談 | 相談 | 無し | - |
| 6階 | 71.62坪 | - | - | - | - |
| 7階 | 71.62坪 | - | - | - | - |
| 8階 | 71.62坪 | 2026年3月1日 | 17,000円/坪 | 無し | 1,217,540円/月 |
| 9階 | 71.62坪 | 相談 | 17,000円/坪 | 無し | 1,217,540円/月 |
もっと検索する
- 駅から検索
- エリアから検索

