- 東京の賃貸オフィス・貸事務所TOP
- 千代田区
- 霞ヶ関・日比谷・内幸町・有楽町エリア
- 蚕糸会館(サンシカイカン)
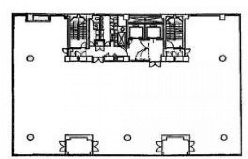
蚕糸会館 5階 79.549坪 賃貸オフィス詳細
- 物件ID
- 51712
- 蚕糸会館(サンシカイカン) 5階 79.549坪
-
”蚕糸会館(サンシカイカン)”は、 日比谷駅から徒歩2分、有楽町駅から徒歩4分、銀座駅から徒歩6分、銀座一丁目駅から徒歩7分、二重橋前駅から徒歩9分、内幸町駅から徒歩10分 の賃貸オフィスです。
1983年4月に竣工。構造は鉄骨鉄筋コンクリート(SRC造)。耐震構造は新耐震。
利用可能路線は都営三田線、都営大江戸線、有楽町線、千代田線、日比谷線、丸ノ内線、銀座線、山手線、東海道本線で、 用途は賃貸オフィスとなっています。最寄り駅は日比谷駅と有楽町駅と銀座駅と銀座一丁目駅と二重橋前駅と内幸町駅。 住所は千代田区有楽町1-9-4です。
ぜひ一度、内覧にお越しくださいませ。
フロア概要
| 階数 | 5階 | 面積 | 79.549坪(262.97m²) |
|---|---|---|---|
| 賃料/坪 | 相談 | 共益費/坪 | 5,000円/坪 |
| 月額賃料 (共益費込) |
相談 | 入居日 | 2025年12月上旬 |
| 敷金 (保証金) |
相談 | 礼金 | 無し |
| 償却費 | 無し | 更新料 | 無し |
| 契約 | 定期借家(2年) | ||
ビル概要
| 物件名 | 蚕糸会館(サンシカイカン) | ||
|---|---|---|---|
| 所在地 | 千代田区有楽町1-9-4 | ||
| 利用可能駅 | |||
| 利用可能 路線 |
|||
| 竣工 | 1983年4月 | リニューアル | - |
| 構造 | 鉄骨鉄筋コンクリート(SRC造) | 規模 | B2階/10階 |
| 耐震構造 | 新耐震 | ||
空調併用
新耐震
光ファイバー利用可
24時間利用可
OAフロア有り
要確認
アクセス
このビルの募集中フロア一覧
| 所在階 | 面積 | 入居予定 | 賃料 | 共益費 | 賃料総額 |
|---|---|---|---|---|---|
| 2階 | 38.976坪 | - | - | - | - |
| 2階 | 58.473坪 | - | - | - | - |
| 3階 | 195.637坪 | 2025年12月上旬 | 相談 | 5,000円/坪 | - |
| 4階 | 19.059坪 | - | - | - | - |
| 4階 | 79.46坪 | 即 | 相談 | 5,000円/坪 | - |
| 4階 | 196.842坪 | - | - | - | - |
| 5階 | 79.549坪 | 2025年12月上旬 | 相談 | 5,000円/坪 | - |
| 5階 | 31.717坪 | - | - | - | - |
| 5階 | 19.11坪 | - | - | - | - |
| 5階 | 53.852坪 | - | - | - | - |
| 7階 | 77.57坪 | - | - | - | - |
| 7階 | 39.167坪 | - | - | - | - |
| 7階 | 11.254坪 | - | - | - | - |
| 8階 | 28.14坪 | - | - | - | - |
| 8階 | 42.82坪 | - | - | - | - |
| 8階 | 22.167坪 | - | - | - | - |
| 9階 | 19.165坪 | - | - | - | - |
| 9階 | 79.46坪 | - | - | - | - |
| 9階 | 39.09坪 | - | - | - | - |
| 10階 | 70.583坪 | - | - | - | - |
| 10階 | 141.642坪 | - | - | - | - |

