- 東京の賃貸オフィス・貸事務所TOP
- 中央区
- 銀座エリア
- (仮称)西銀座開発計画(ニシギンザカイハツケイカク)
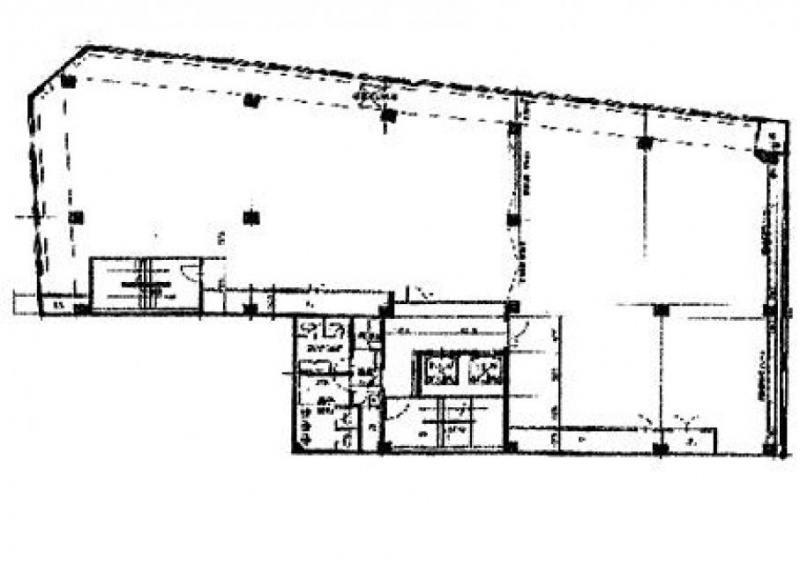
(仮称)西銀座開発計画 4階 128.38坪 賃貸オフィス詳細
- 物件ID
- 51301
- (仮称)西銀座開発計画(ニシギンザカイハツケイカク) 4階 128.38坪
-
”(仮称)西銀座開発計画(ニシギンザカイハツケイカク)”は、 銀座一丁目駅から徒歩2分、有楽町駅から徒歩3分、銀座駅から徒歩5分、京橋駅から徒歩6分、日比谷駅から徒歩7分、東銀座駅から徒歩8分、東京駅から徒歩9分、二重橋前駅から徒歩10分 の賃貸オフィスです。
2026年8月に竣工。構造は鉄骨鉄筋コンクリート(SRC造)。
利用可能路線は東海道本線、山手線、銀座線、日比谷線、千代田線、有楽町線で、 用途は賃貸オフィスとなっています。最寄り駅は銀座一丁目駅と有楽町駅と銀座駅と京橋駅と日比谷駅と東銀座駅と東京駅と二重橋前駅。 住所は中央区銀座2-2-2です。
ぜひ一度、内覧にお越しくださいませ。
フロア概要
| 階数 | 4階 | 面積 | 128.38坪(424.4m²) |
|---|---|---|---|
| 賃料/坪 | 相談 | 共益費/坪 | 賃料に含む |
| 月額賃料 (共益費込) |
相談 | 入居日 | 相談 |
| 敷金 (保証金) |
相談 | 礼金 | 無し |
| 償却費 | 無し | 更新料 | 無し |
| 契約 | 普通借家 | ||
ビル概要
| 物件名 | (仮称)西銀座開発計画(ニシギンザカイハツケイカク) | ||
|---|---|---|---|
| 所在地 | 中央区銀座2-2-2 | ||
| 利用可能駅 | |||
| 利用可能 路線 |
|||
| 竣工 | 2026年8月 | リニューアル | - |
| 構造 | 鉄骨鉄筋コンクリート(SRC造) | 規模 | B1階/12階 |
| 耐震構造 | 要確認 | ||
個別空調
要確認
光ファイバー利用可
24時間利用可
要確認
駐車場有り
アクセス
このビルの募集中フロア一覧
| 所在階 | 面積 | 入居予定 | 賃料 | 共益費 | 賃料総額 |
|---|---|---|---|---|---|
| 3階 | 128.38坪 | 相談 | 相談 | 賃料に含む | - |
| 4階 | 128.38坪 | 相談 | 相談 | 賃料に含む | - |
| 5階 | 128.38坪 | 相談 | 相談 | 賃料に含む | - |
| 6階 | 128.38坪 | 相談 | 相談 | 賃料に含む | - |
| 7階 | 128.38坪 | 相談 | 相談 | 賃料に含む | - |
| 8階 | 128.38坪 | 相談 | 相談 | 賃料に含む | - |
| 9階 | 128.38坪 | - | - | - | - |
| 10階 | 128.38坪 | 相談 | 相談 | 賃料に含む | - |
| 11階 | 128.38坪 | 相談 | 相談 | 賃料に含む | - |
| 12階 | 128.38坪 | 相談 | 相談 | 賃料に含む | - |

